The EM House located in Zapopan, Jalisco, Mexico is a project of TaAG Arquitectura completed in 2012. Its space houses a family with four members, being large enough for all kind of family activities. It features independent spaces that can host a large number of visitors but also it’s very useful when it comes for a big family reunion.
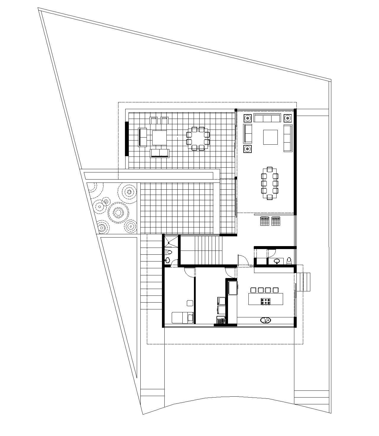
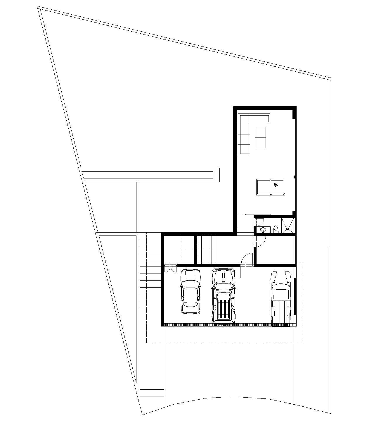
It’s divided into three different levels: the first one accommodates the garage and a studio with private bathroom, providing direct access from the street without interfering with the rest of the house; the ground floor is arranged as a crujia featuring a central courtyard; the upper level is defined by the foyer and the large dining room.
The materials used in the construction such as glass, stone, wood and white mortar plaster are in contrast with the greenery and the beautiful view of the land with a diamond shape.
Photos by Jorge Silva












More Similar Articles Like This
Astonishing El Tovar by the Sea
Exploring the New World of Luxury Hoteling
Dreamy Oceanfront Chateau In West Vancouver, Canada
Behr’s Brilliant Blues: 70 Shades of Stunning Paint Colors
Exquisite Crossacres Mansion In Surrey, England
Stunning Banyan Tree Ungasan Bali in Indonesia
10 Different Types of Blue Paint Colors
Best paint colors for the living room