Los Altos Hills Residence is an impressive contemporary home designed by CCS Architecture and completed in 2008. It is located in Los Altos Hills, California, as the name suggests. With 6,000 square feet of tastefully appointed spaces spread over two floors, this is a perfect family home with a pool house and carefully manicured lawns.
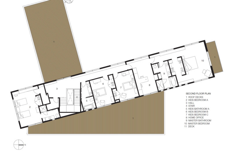
It was built for a family of five, on a one-acre lot, and it is broken into three different parts that are separated by two breezeways. The main structure is shaped like an L, and it includes the garage and the main living areas. The second floor is clad in cedar and it houses the four bedrooms of the house. The pool house is located under the north end of the second floor, separated by the living area by a breezeway.
Large windows and sliding glazed doors allow an unobstructed communication with the lovely outdoor spaces. The property features olive, apricot, citrus and California pepper trees that enhance the privacy of the residence. On the roof there are photovoltaic panels that help generate half of the residence’s electricity. Additional panels are used to heat all of the home’s water. Sunshades decrease heat gain during summer, but there is also a high efficiency electric heat pump that takes care of the dwelling’s cooling and heating needs. Insulation plays a major role in keeping this house nature friendly.
Photos by: Matthew Millman



















More Similar Articles Like This
The JKC1 House in Bukit Timah, Singapore
Lovelli Residence: Mediterranean-Style Dwelling in Bali
Astonishing El Tovar by the Sea
A Superb Italianate Mansion in California, USA
The Superb Maradiva Villas Resort & Spa in Mauritius
Lawn Care Tips, The Basics For Each Season
Boracay Resort & Spa in the Fascinating Philippines
Exquisite Crossacres Mansion In Surrey, England