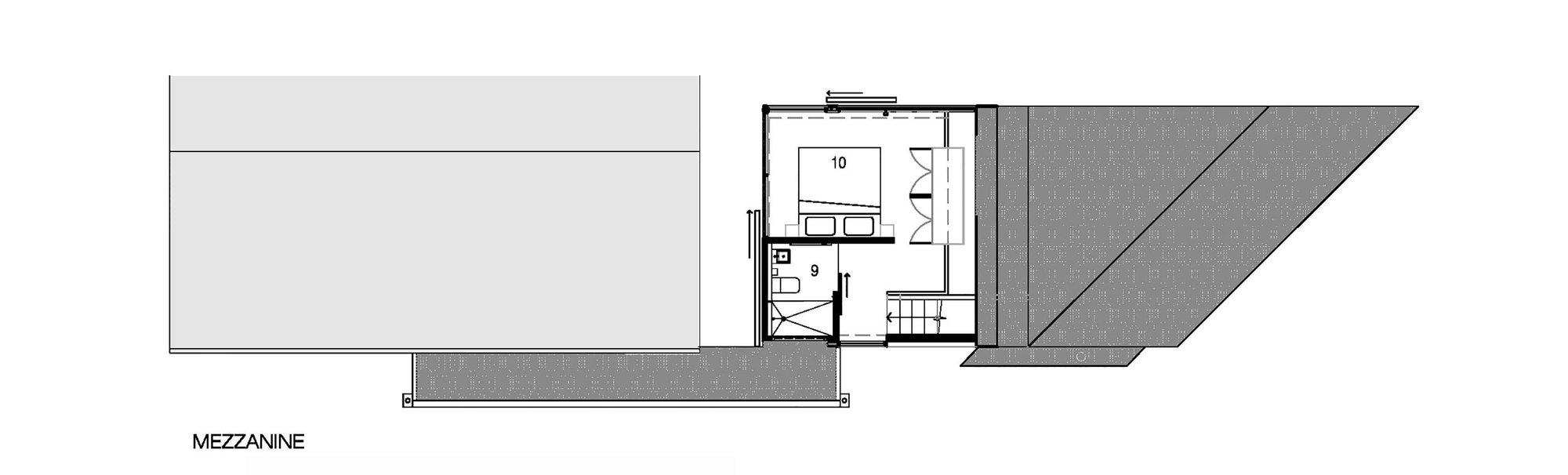
Cabin 2 was completed in 2013 and represents an extension of an older log cabin from the 1960s. The cabin is located in Blairgowrie, Australia and was designed by Maddison Architects in such a way as to retain its original characteristics. The architects managed to achieve this goal by separating the older home from the new addition. The original cabin includes a bunkroom, a pair of bedrooms, a living area combined with a kitchen, and a bathroom, while the new volume comes with a ground floor living space, a kitchenette, a hidden study, a new northern deck and a bedroom with an ensuite at a mezzanine level.
Perhaps one of the most impressive architectural features of Cabin 2 is the folding roof, which is composed of a bituminous membrane and a pre-fabricated skeletal timber frame. Then there’s the monolithic concrete plinth that is partially sunken into the ground in order to convey a feeling of protection and connection with the natural environment.
Flaunting just 1,184 square feet of living space, Cabin 2’s impact on the environment is minimal. The architects made sure to preserve as much of the local plant life as possible during the building process, and to plant a few new trees as well.
From the architect:
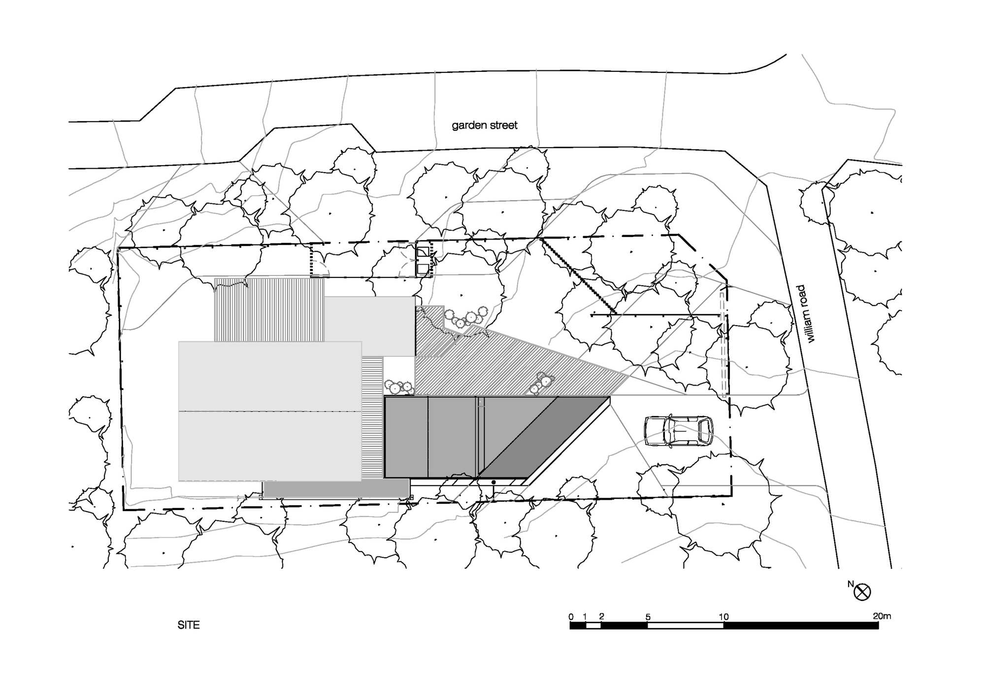
Cabin 2 is an extension/addition to an existing 1960s log cabin located in bayside Blairgowrie. The surrounding coastal Moonah woodland forgivingly hides a suburban-like density of houses and network of winding roads free of formed kerb, gutters and footpaths. Many of the houses are holiday homes and there is an accompanying high level of development activity.
It’s within this context that our clients engaged us to provide a new, self- contained retreat and enable extended visits from family members and guests in the existing cabin. Our tactic was to separate the new addition from the existing cabin enabling new and old to retain and express their individual identities.
The existing cabin has two bedrooms, a bunk room, kitchen/living area and bathroom. Cabin 2 provides a new bedroom and ensuite at mezzanine level, a ground floor living space, kitchenette & concealed study and additional northern deck area. The new architecture is informed by and embedded into the landscape. The folding roof grows out from the topography to act as a new type of landform. This bituminous membrane wall/roof plane and its supporting pre-fabricated skeletal timber frame appear influenced by the prevailing wind forces shaping the surrounding contorted Moonah trees.
The roof directly reflects the internal volume and the program of functions underneath which lead upstairs to the elevated bedroom offering extensive alley views. The roof form is unified so that roof is ceiling and the structural timber frame is fully exposed both inside and out to convey both a structural and architectural honesty.
The monolithic concrete plinth is part sunken into the land in an attempt to emphasise a feeling of refuge and physical engagement with the site. The in situ concrete application also enables a seamless integration of the kitchenette, half of the stairs and the fireplace hearth, as well as providing an external seat and integrated linear planter.
Cabin 2 aims to minimise site impact. It is only 110m2 and is camouflaged from the surrounding streets. It was located to reduce site disturbance and minimise removal of existing trees. We have strengthened and extended the vegetation through subsequent indigenous planting, revegetating the entire understorey of the site and supplementing the Moonah trees.
We have staggered new fence lines and indigenous planting to blur abstract property boundary lines and hopefully expand the feeling of the site beyond its immediate confines.
Design Director: Drew Carling
Project Architect: Amir Shayan
Builder: Frank Pty Ltd
Engineer: Perrett Simpson Stantin
Landscaping: Drew Carling
Interiors: Maddison Architects
Lighting: Masson for Light
Architect In Charge: Peter Maddison
Area: 110.0 sqm
Year: 2013
Photographs: Will Watt













More Similar Articles Like This
Loving Luxury at Mardan Palace Resort, Turkey
Shadowed Depths: Vintage-inspired Paint Colors for Dark Basements
10 Different Types of Blue Paint Colors
A Superb Italianate Mansion in California, USA
Behr’s Brilliant Blues: 70 Shades of Stunning Paint Colors
Vibrant Concrete Floor Paint Colors to Elevate Your Space
Different Types Of Foundations For Summer Houses and Garden Buildings
Saguaro Palm Springs by Joie de Vivre