The Beiro House was built in 2014 in Florida, Buenos Aires Province, Argentina, and it was designed by a team of skilled architects from Proyecto C. The residence offers 3,552 square feet of living space to its fortunate owners – a couple with a teenage child and two grown up ones. The architects needed to design a home that would provide irreproachable accommodations for all family members, especially since the grown children visit their parents occasionally.
On the outside, the house appears contemporary and minimalistic. It wasn’t built with extravagance in mind but rather with elegant simplicity and functionality. Its living areas are spacious and welcoming, its windows are generously sized and its appliances are state-of-the-art. The social and private areas are separated accordingly in order to make sure that all residents are able to enjoy utmost comfort.
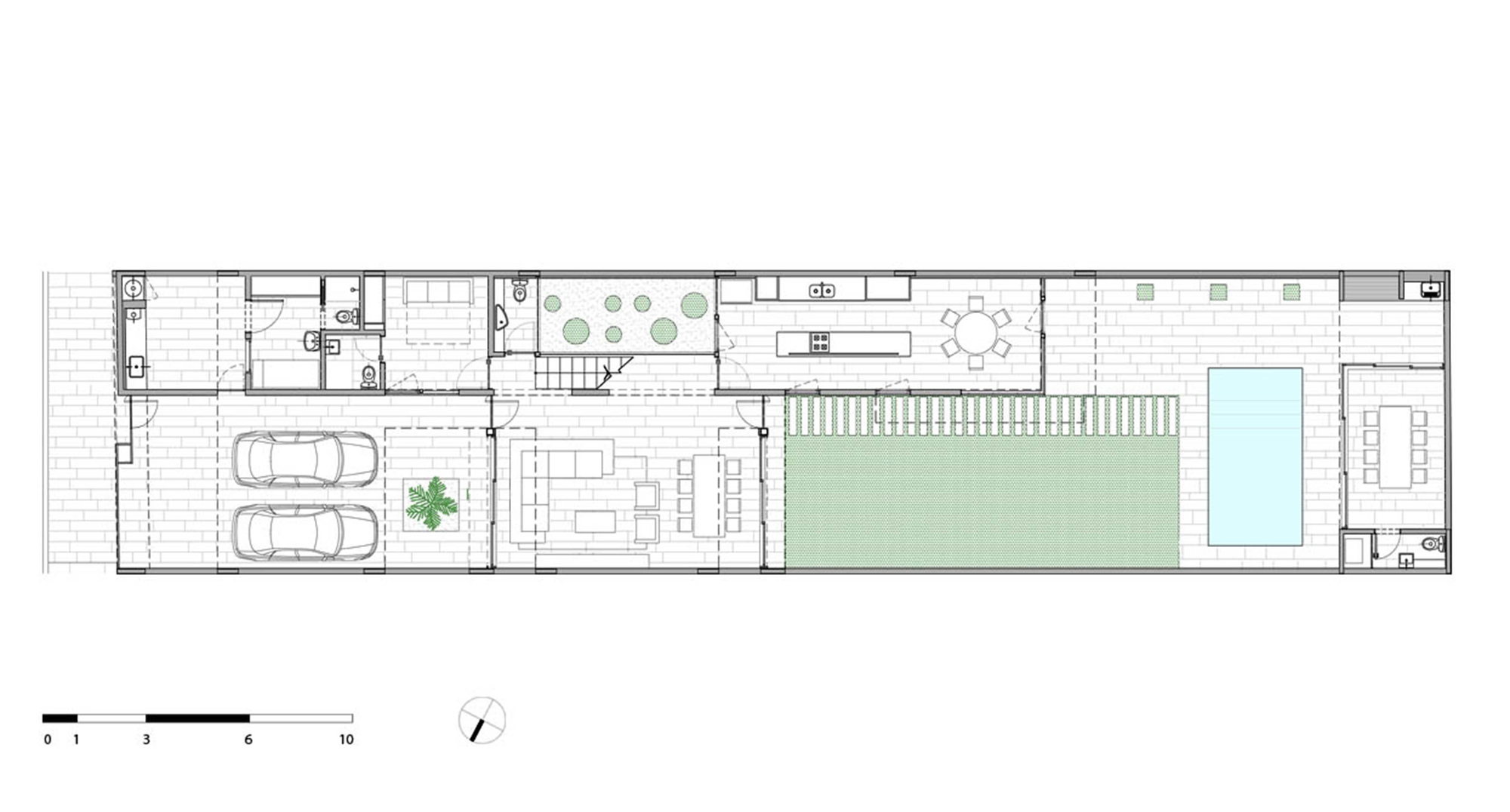
The Beiro House is divided into three different courtyards that house the kitchen, spa, main suite, bathrooms, a living room and a dining room. The abode includes a plethora of glass features that ensure transparency and a seamless flow of natural light throughout. As far as decorations go, natural plants add naturalness and contribute to a warm atmosphere.
Photos by Gustavo Sosa Pinilla










More Similar Articles Like This
How Seattle Lawn Care Service Deals With Overgrown Lawns
Stunning Banyan Tree Ungasan Bali in Indonesia
Dreamy Oceanfront Chateau In West Vancouver, Canada
10 Different Types of Blue Paint Colors
Secluded Naladhu Island in Maldives
Pure Perfection: Discover the Top White Paint Colors for a Flawless Décor
Amazing Four Seasons Resort Bora Bora
The Superb Villa Verai on Phuket Island, Thailand