Completed in 2015 by Benjamin Hall Design, White Stone Studios is an apartment complex that flaunts a total of 3,000 square feet of space. The complex is located in Phoenix, Arizona, USA, and it includes six 45-square-foot rentals that are complemented by additional 200 square-feet private exterior and interior green areas.
Flooded with natural light, the apartments boast polished double-sided walls made out of white concrete, which are foam-filled in order to improve the insulation value. The roof also received the foam insulation treatment, and the units were positioned carefully in order to make sure that they receive just the right amount of sunlight. The entryways feature custom oversized white oak doors, while raw steel awnings provide protection from the rain, wind and dust.
From the architect:
Architecturally trained and with a tooth-and-nail approach to construction, master builder Benjamin Hall converted an empty lot into an elegant urban infill project in downtown Phoenix, Arizona. Offering six studio apartments, White Stone Studios is the epitome of micro-dwelling made easy. Located in downtown Phoenix, in a neighborhood that locals call the Triangle, White Stone Studios furnishes a modern, clean aesthetic amidst what is likely to become the city’s new urban hub.
These 450-square-foot rentals are flanked with additional 200 square feet of private interior and exterior greenspaces. The atriums and patios are carved out of the solid exterior shell to provide an abundance of natural light, while maintaining a private and protective mass. The walls are built of polished double-sided white concrete masonry units that double as both the interior and exterior finish and are foam-filled for maximum insulation value. The roof also makes use of foam insulation, rendering the building super insulated. The residential complex is optimally positioned for natural daylight while still mitigating direct solar exposure.
These two approaches help reduce heating and cooling costs in the Sonoran desert climate. Custom oversized white oak doors welcome renters to their units, while aging raw steel awnings protect residents from the elements. Hall designed and fabricated all steel components – some of which were built years prior to breaking ground, like this custom door jam, deadbolt and mail-slot piece. The rough wood fencing that wraps the perimeter of the complex is constructed of pallet wood that Hall reclaimed from existing job sites around Phoenix.
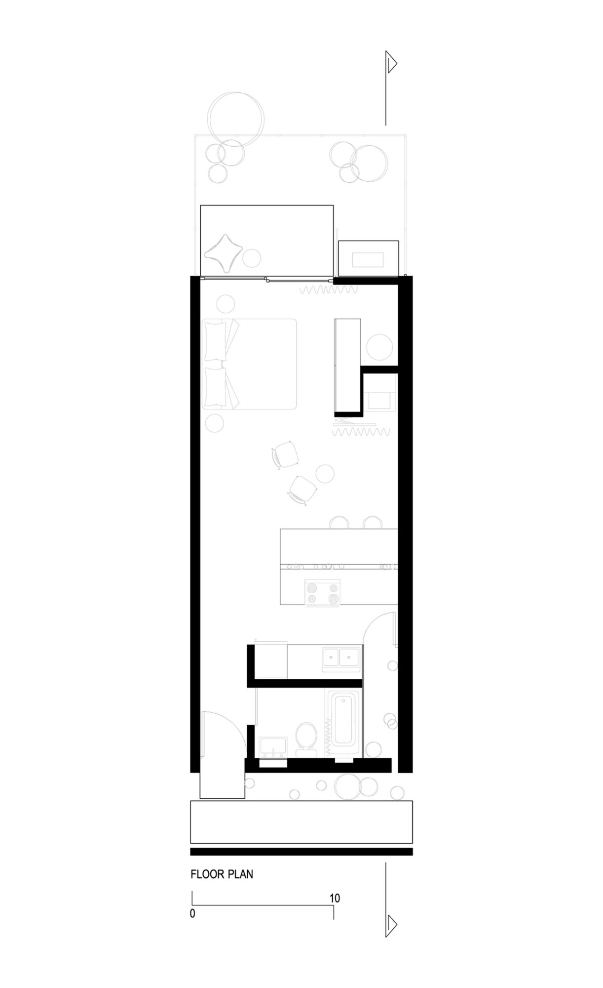
The architecture was designed with affordable commodity items in mind, including Ikea cabinetry, Ace Hardware gas pipes and Home Depot appliances. Laundry, storage and entertainment were integrated into a monolithic pod that can be screened by the translucent curtains to create layers of privacy and separation.
Perceptually, the cozy bathroom increases in dimension due to the full-height window that looks into the private atrium, ideal for a long soak in the bath tub. Hall customized countertops from Ikea into luxury barn door sliders. In addition, he recessing mirrored Ikea medicine cabinets into the block to create a full-height mirrored panel. Parking is accommodated from the alley to ease street congestion. Additionally, the community’s common spaces are secured by fencing and custom steel gates.
Architects: Benjamin Hall Design
Location: Phoenix, AZ, USA
Design Team: Benjamin Hall, Matt O’Bright
Unit Area: 450 ft2
Area: 3000.0 ft2
Project Year: 2015
Photographs: Matt Winquist
General Contractor: 180 degrees inc
Contractor: Benjamin Hall design + build
Structural Engineering: Struktur Studio
Plumbing/Mechanical Engineering: Otterbein Engineering
















More Similar Articles Like This
Lovelli Residence: Mediterranean-Style Dwelling in Bali
These Top Tips Will Help You to Turn Your Garden into the Ultimate Glamping Site!
Different Types Of Foundations For Summer Houses and Garden Buildings
Lawn Care Tips, The Basics For Each Season
A Superb Italianate Mansion in California, USA
Loving Luxury at Mardan Palace Resort, Turkey
6 Garden and Lawn Tips to Get Ready for Spring
Vibrant Wood Tones: Explore a Spectrum of Spray Paint Colors!