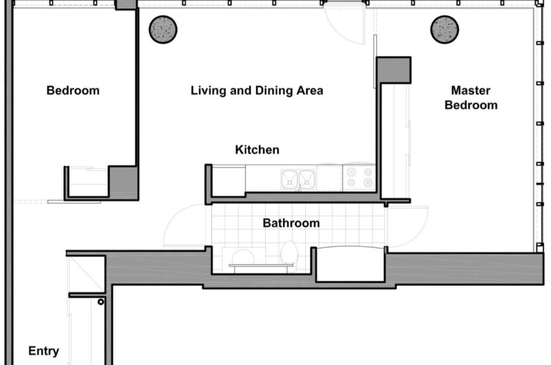
Kariouk Associates solved the spatial issues of the following interior by gathering the shower and the storage areas in elliptical columns that act as room dividers. This genuine solution was put into practice for a client in Ottawa, Ontario, Canada.
This interior design dismantles the idea of separating the public space form the private area, promoting the modern, urban living.
The space was organized with the help of a floor-to-ceiling wall of cabinetry that practically doubled the amount of storage. The shower was created in a way that could maintain a visually unified interior, becoming, despite its character of private space, the focal point of the unit.
A study that accommodates a work station, shelving and the keyboard of an electric piano, are folded into a storage wall, gaining in this way more space for the dwelling,
The opaque drapery fit within the ceiling contribute to providing privacy when is required.
White porcelain was used throughout in order to unify the interior and to contribute through its reflective properties to a luminous space.
The edges of the balcony are emphasized by a “garden” of fiber-optic acrylic rods, turning in this way a common and ordinary space into a vital outdoor living room.
Photos by Photolux Studio















More Similar Articles Like This
Boracay Resort & Spa in the Fascinating Philippines
Different Types Of Foundations For Summer Houses and Garden Buildings
Spectacular Luxury House in Sarasota, Florida by DSDG Inc. Architects
The Superb Maradiva Villas Resort & Spa in Mauritius
Benjamin Moore Exterior Paint: Vibrant Shades for a Striking Home
Lawn Care Tips, The Basics For Each Season
Exploring the New World of Luxury Hoteling
Astonishing El Tovar by the Sea