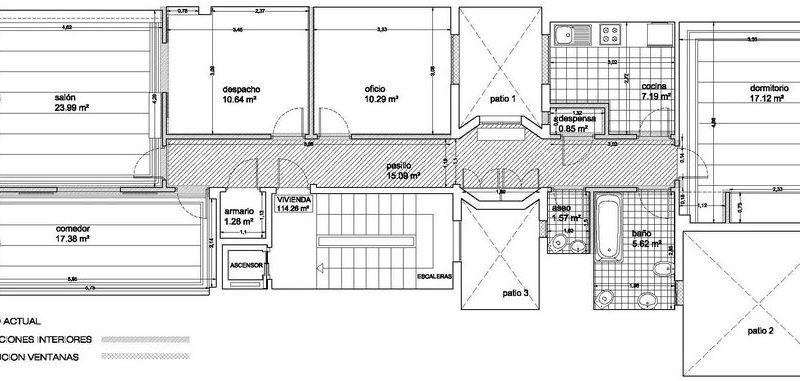
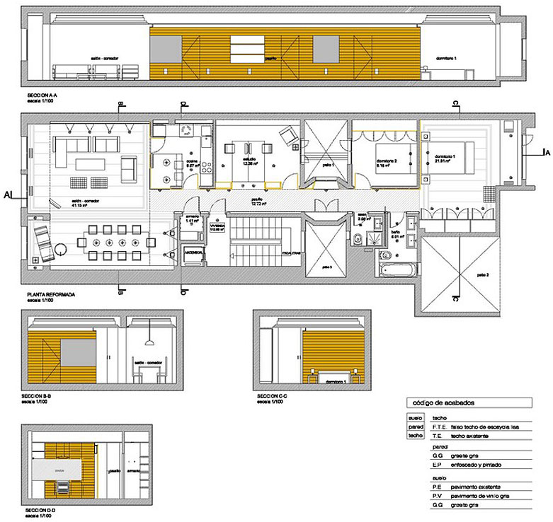
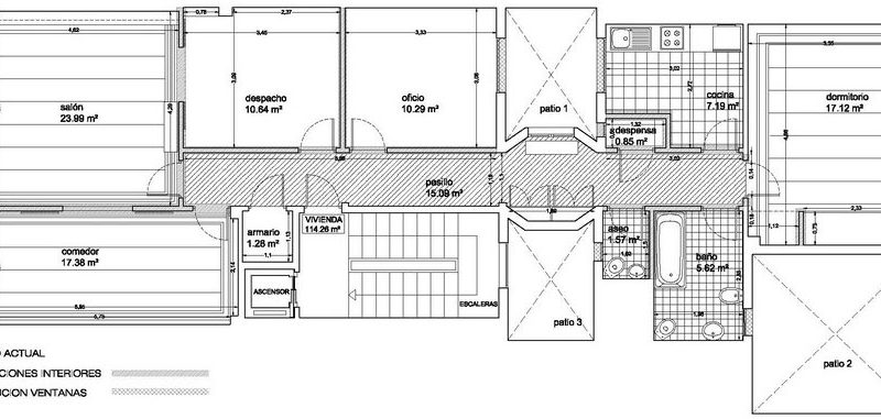
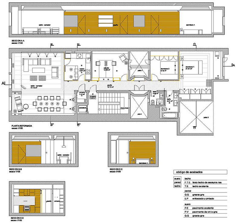
The following interior design by Díaz y Díaz Arcquitectos is a special project located in La Coruña, Galicia, Spain. It is special because by removing the walls, this flat was provided much more space and natural light, instead of the walls, an ingenious architectural piece taking their place.
All the available space was used at the fullest and now every little thing seems to have its own perfect corner.
The special element we were talking about is a cube of sucupira that gathers the new rooms: the kitchen, the office and the guests’ room. Another white cube facing the sucupira one contains the toilets, the closets and the access.



















More Similar Articles Like This
Lovelli Residence: Mediterranean-Style Dwelling in Bali
Best paint colors for the living room
10 Different Types of Blue Paint Colors
Marvelous Anantara Dhigu Resort
The Sophisticated Casa Villa Flamingo in Spain
Secluded Naladhu Island in Maldives
70 Shades of Green: Benjamin Moore’s Vibrant Paint Colors
Astonishing El Tovar by the Sea