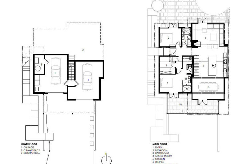
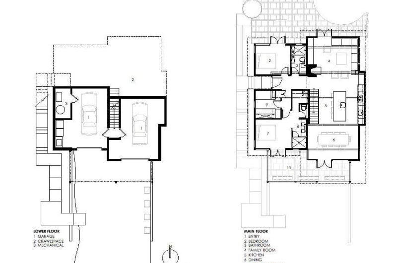
Stinson Beach House project is a contemporary residence completed by WA Studio. The 1,400-squre-foot home is located on a small infill in the sunny Stinson beach, California, USA.
The architects built this beautiful energy-efficient home on a small site connected to the ocean and with amazing views of Mount Tamalpais. Because they had to face the zoning regulations and a limited budget, the house plan was developed around a great room, perfect for family and friends activities. The bedrooms had to be downscaled, that is why they only fit a bed and little more. The house features an elevated south-sloping roofline, and large clerestory windows, which provide breathtaking views. The house is covered in a coat of Corrugated Galvalume metal, and cement board siding, creating a simple and elegant exterior.
Created as an energy-efficient home, it features open-cell foam insulation, natural ventilation, concrete floors, recycled materials, and a large solar and photovoltaic thermal array.



















More Similar Articles Like This
Stunning Sustainable Home in Costa Rica by SPG Architects
Marvelous Anantara Dhigu Resort
The JKC1 House in Bukit Timah, Singapore
The Sophisticated Casa Villa Flamingo in Spain
10 Different Types of Blue Paint Colors
Exceptional Coronado Bay Front Estate in California
Lawn Care Tips, The Basics For Each SeasonÂ
Santa Barbara Style Home in Paradise Valley, Phoenix