The architects at Studija Archispektras designed this house in the woods in 2011. It is situated in Kaunas, Lithuania and it’s a part of the woods, since it appears to have risen in the middle of it. Another defining element is the river running near the house.
The exterior design comes as an emphasis on the fact that this house is a part of the woods. It is simple and clear, with natural elements. Reflective glass was used too, so the impression is that the pine trees in the garden keep growing even inside the house.
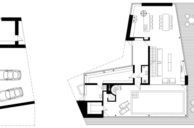
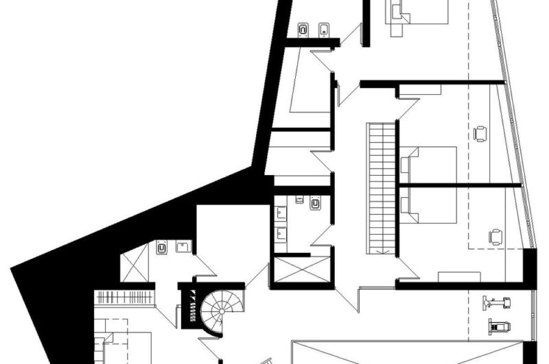
The entire residence is stylish and modern and includes a two-leveled main house, a garage for two cars, and a large garden with lawn and stone pavements. The interior design was kept on a minimalist note, with natural elements like solid oak, but the concept revolves around spaces, not decorations. The paintings on the walls and ceilings, the use of glass walls and windows to create an indefinite space from the interior to the exterior, and the game of light and shadows, all make the house step out of the purposely factory-like form and give it’s warmth.





























More Similar Articles Like This
The Superb Maradiva Villas Resort & Spa in Mauritius
Lovelli Residence: Mediterranean-Style Dwelling in Bali
Amazing Four Seasons Resort Bora Bora
The Superb Villa Verai on Phuket Island, Thailand
How Seattle Lawn Care Service Deals With Overgrown Lawns
Stunning Banyan Tree Ungasan Bali in Indonesia
Pure Perfection: Discover the Top White Paint Colors for a Flawless Décor
Dreamy Oceanfront Chateau In West Vancouver, Canada