Villa T can be found in Saint-Gély-du-Fesc, France, and it was completed in 2012 by Boyer Percheron Assus. It was built on a sloping site, and it features a long stone wall as well as a wooden terrace that ensures privacy from prying eyes as well as great opportunities for relaxation, as it allows the residents to admire the surrounding scenery.
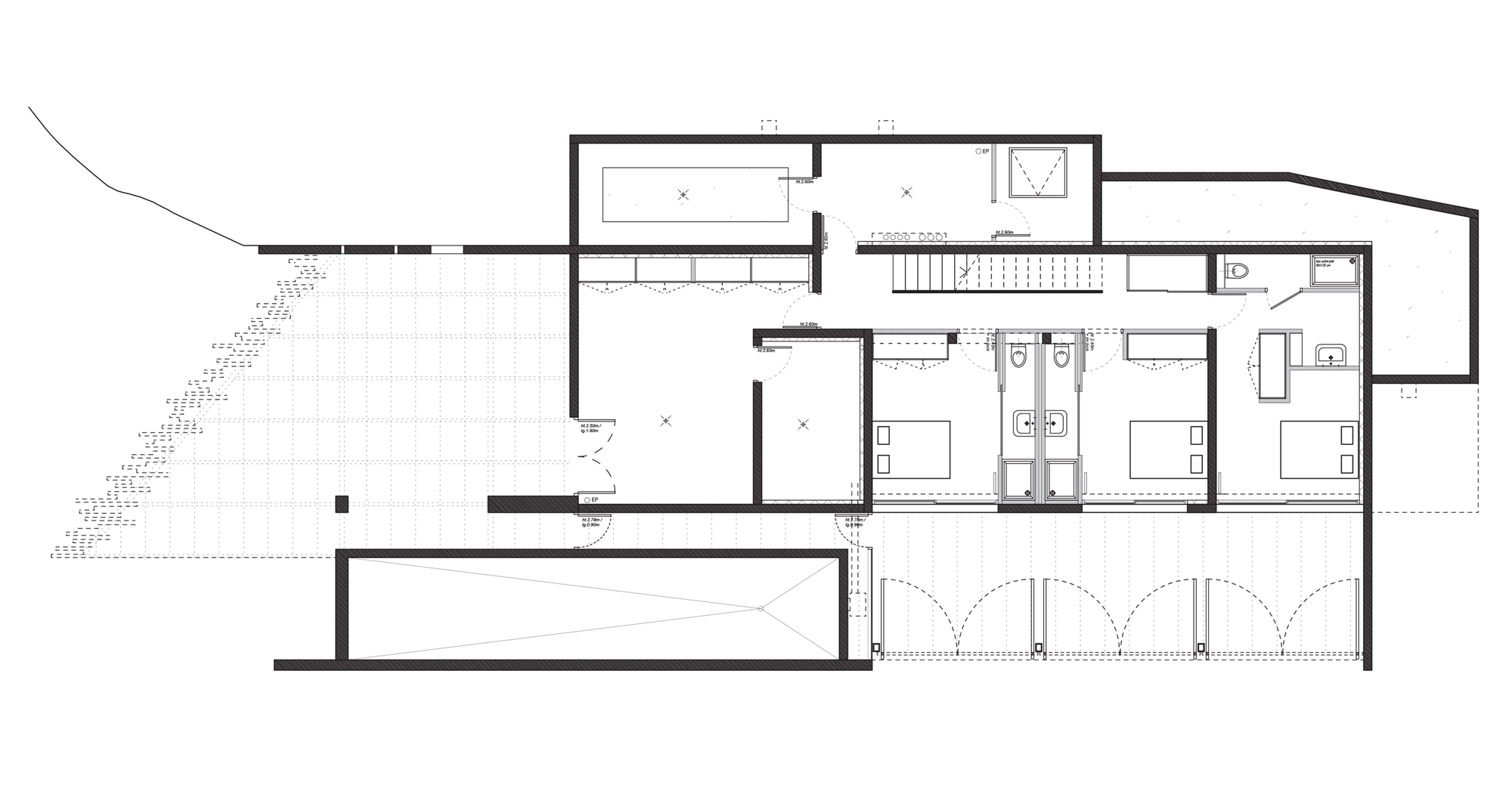
The private areas of Villa T are found at its lower level, and they include three en-suite bedrooms that offer private and comfortable living conditions. The bedrooms’ windows are sheltered by the eaves of the terrace above, and they flaunt large wooden shutters. The main living areas are linked to the outdoor terrace, while the swimming pool is basically an extension of the terrace, which means that it benefits from the same panoramas.
From the architect:
The sloping terrain and the presence of a rocky incline in the upper part of the land have guided the design of this villa, based on a long stone wall by which the property becomes almost imperceptible from the driveway.
Hidden from onlookers at the back by this beautiful terrace, the villa is developed on the largest part of the plot, almost diagonally and with a north-south orientation. The long and narrow land, that follows a levelled curve, allows for a reduction in embankments and debris, and opens to an extended perspective of the surrounding south and east hills.
Taking the terrain’s topography into account, the entrance and the living rooms are arranged in such a way that they look down on the land. The living areas extend to the outside space through a wooden deck, which borders the entire south and east side, and offers views to great scenery and a canopy of beautifully preserved trees. The swimming pool, aligned to the length of the terrace, acts as an extension of the terrace and also profits from this magnificent vista.
The lower floor on level with the natural terrain, accommodates three en-suite bedrooms. The windows are largely protected by the eaves from the above terrace. The large wooden shutters allow the outside terrace space to be closed, offering options to play with the interior and exterior boundaries.
Main Contractor: Agency Architecture Boyer-Percheron-Assus and Associates
Area: 270.0 sqm
Year: 2012












More Similar Articles Like This
Seamlessly Apartment by the Beach by ZZ Architects
Tips for Choosing the Right Blue Paint Color for Your Dining Room
Different Types Of Foundations For Summer Houses and Garden Buildings
Spectacular Luxury House in Sarasota, Florida by DSDG Inc. Architects
Gayton Road Residence by Paxton Locher Studio
Superb Luxury Penthouse in Portomaso, Malta
Dreamy Oceanfront Chateau In West Vancouver, Canada
The Sophisticated Casa Villa Flamingo in Spain