Built on a picturesque location in Pecatu, Indonesia, Villa Pecatu was sketched out by Wahana Cipta Selaras. It features a simple yet impressive exterior design that allows it to blend easily with its surroundings. The materials used for this project, namely wood and stone, feature earthly tones of black and brown, while the small trees and flowers found on the property further contribute to an ambiance of naturalness.
The villa boasts an interior courtyard that includes a tranquil swimming pool flanked by a wooden deck and comfortable lounging chairs. Inside, we find a mix of rustic and modern furnishings as well as contemporary amenities and facilities that enhance comfort and help sustain a luxurious lifestyle. As far as entertainment and relaxation are concerned, the house flaunts an outdoor Jacuzzi as well as a pool table and flat-screen TVs in the living room and bedrooms. Air conditioning systems ensure that the indoor temperature is always at optimum levels regardless of the season.
From the architect:
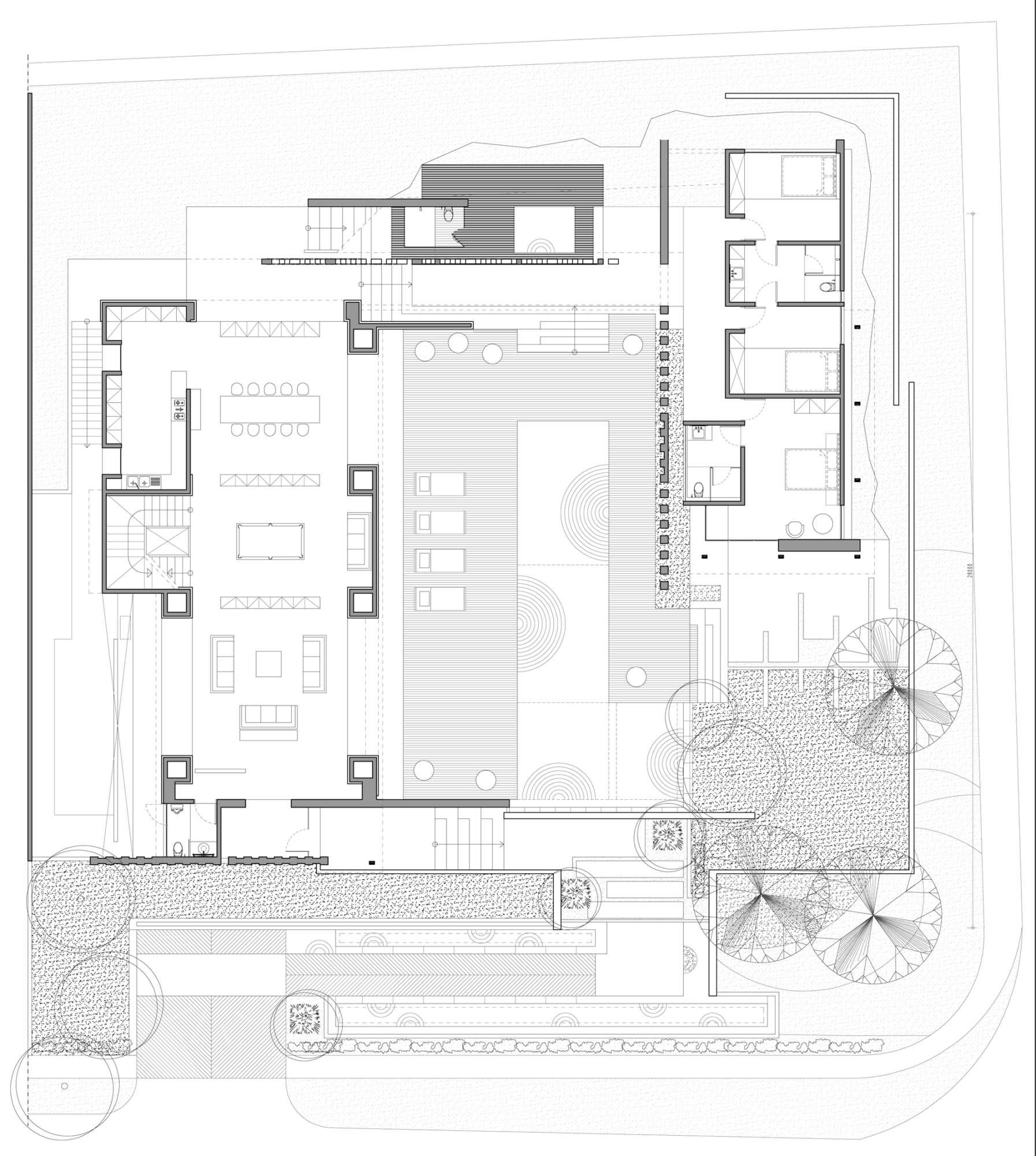
Located on the reserved hilly limestone landscape of Pecatu, a beach resort in the southern peninsula of Bali, Natural @ Pecatu is a 900 m2 private villa built on a 1600 m2 site which comprises of a 5 bedrooms including 3 bedrooms for the guests as well as other recreational functions.
A simple design language was developed for the project. The main idea is simply to divide the villa into 2 primary buildings, separating the characteristic of public and private space and connect the two with a semi outdoor bridge – a humble composition towards the contours of the site and the vast panorama of its surroundings.
On the first building, the foyer, living room, dining room and pantry are designed as openly as possible towards the outdoor pool area and the beautifully designed exotic landscape while the study and the two main bedrooms on the third floor have the view overlooking the sea.
The other building, however, consists of all three guest bedrooms on the ground floor and a very cozy sky lounge above while all the service activities are literally hidden in the basement which is physically pushed into the hill.
Natural stones dominate the what-so-called base and façade, bringing the massive and enclosed illusion from the outside, letting the upper levels express the total opposite of lightness and transparency through the glass and woods. The boldly exposed local materials give not only an exquisite architectural experience but also a delicate approach towards nature.
Architect In Charge: Rudi Kelana
Design Team: Matheus R.
Area: 1,600 sqm
Year: 2013
Structure Consultant: Ricky Theo
Main Contractor: Wahana Cipta Selaras
Lighting: David Liming (Infinity Lighting)
Interior: Grahacipta Hadiprana
Photographs: Fernando Gomulya
















More Similar Articles Like This
Wonderful Yachting Club Villas at Elounda Beach by Davide Macullo Architects
Seamlessly Apartment by the Beach by ZZ Architects
The Superb Villa Verai on Phuket Island, Thailand
Astonishing El Tovar by the Sea
Vibrant Wood Tones: Explore a Spectrum of Spray Paint Colors!
Exceptional Coronado Bay Front Estate in California
A Superb Italianate Mansion in California, USA
Loving Luxury at Mardan Palace Resort, Turkey