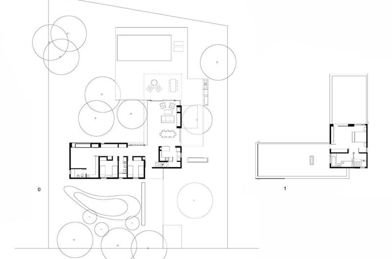
RDR Arquitectos is a Buenos Aires-based studio that is part of Richter Dahl Rocha & Associés. One of their most remarkable projects is the beautiful Villa La Hilaria, an L-shaped vacation home in Punta del Este, Uruguay.
Among the best features of this two-story contemporary residence, there is the lovely outdoor area, with a perfectly cut lawn, comfy sun lounges, and a large swimming pool, all surrounded by a lush vegetation and delicate flowers.



















More Similar Articles Like This
Marvelous Anantara Dhigu Resort
Extraordinary Constance Halaveli Maldives Resort
Vibrant Wood Tones: Explore a Spectrum of Spray Paint Colors!
Seamlessly Apartment by the Beach by ZZ Architects
Spectacular Luxury House in Sarasota, Florida by DSDG Inc. Architects
Vibrant Concrete Floor Paint Colors to Elevate Your Space
Heavenly Lily Beach Resort & Spa In Huvahendhoo, Maldives
Superb Luxury Penthouse in Portomaso, Malta