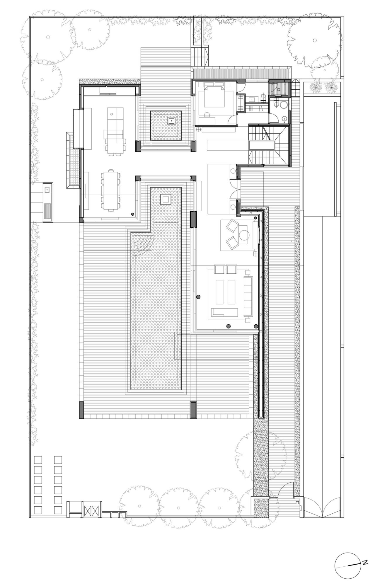
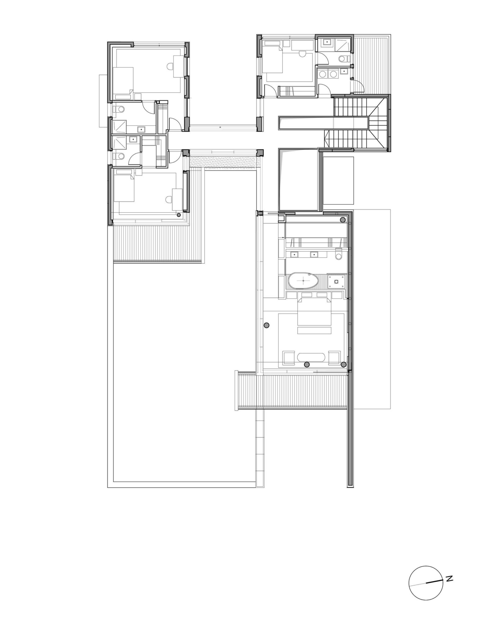
Located within a beautiful town in Israel named Caesarea, Villa C was designed by Gal Marom Architects and offers 5,489 square feet of space. Its positioning and modern design were influenced by the particular weather conditions of the Israeli coastal town, and necessary measures were implemented in order to ensure that the owners would be able to enjoy the breeze from almost every room. Furthermore, by ensuring natural ventilation throughout the house, the architects also enhanced the project’s sustainability, which eventually allowed it to earn the 2012 Honorable Mention of the Emilio Ambasz Award for Green Architecture.
The interior design impresses with minimalism, transparency and high quality finishes that contribute to a comfortable ambiance. The material choice includes gray basalt for the floors, glass, aluminum and teak wood. As the owners prepare to enter the abode from the street level, they are greeted by a multi-functional wall that spreads from one side of the project to the other. The wall is clad in aluminum sections that form incredible views towards the entryway while minimizing energy losses due to their high quality insulation.
From the architect:
Villa C. Is a contemporary house which is located in the ancient city of Caesarea, Israel.
The position of the villa on the site was highly influenced by the climatic conditions of the Israeli coastal plan. In effect, the positioning of the house in the depth of the site influenced from the wind directions which allow the clients to enjoy the Mediterranean Sea breeze and energy saving via natural ventilation. Sun movement and natural light were also assimilated into the design, the sustainable approach gave this house the 2012 Honorable Mention of the Emilio Ambasz Award for Green Architecture.
The interior and exterior spaces were designed as “a whole” –Minimal structure, transparent walls and long vistas to the yard and pool blurs the borders between the interior and exterior and helped to create endless opportunities of optical illusion throughout the site. As one approaches the house from the street level, the monumental multi-functional wall is revealed. The wall stretches from one side of the house to the other and is read as though it is floating. It is covered with aluminum profiles in various sections. These sections have an esthetic role of creating breathtaking views as one is gazing to the entrance of the house as well as an ecological role in decreasing energy loss, inside the house due to the thickness of the wall and the insulation qualities of the profiles.
Natural materials – teak wood, aluminum, glass and gray basalt floor that were used to build the house, gives the villa the an organic, modern, clean feeling.
Architects: Gal Marom Architects
Location: Caesarea, Israel
Area: 510.0 sqm
Project Year: 2012
Photographs: Itay Sikolsky












More Similar Articles Like This
Benjamin Moore Exterior Paint: Vibrant Shades for a Striking Home
Stunning Banyan Tree Ungasan Bali in Indonesia
Unique Click Clack Hotel In Bogota, Colombia
Opulent Mandarin Oriental Hotel in Paris
Lawn Care Tips, The Basics For Each Season
Green Gables Home In Fairfield, Connecticut, United States
Plain Geometric Residence Designed by Lidija Dragisic
Contemporary BO House In Envigado, Antioquia, Colombia