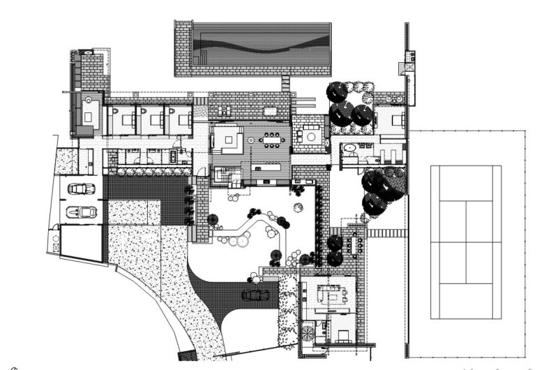
One Wybelenna located in Brisbane, Australia was designed by Shaun Lockyer Architects. The construction was built almost from scratch out of a remnant of a Robin Gibson cottage.
The house features a long, linear plan, created specially to soak up the winter sun and to provide direct access to the pool and garden.
Despite the fact that it’s a large house, it has a strong sustainability and includes turf roofs, 140.000 l of water, 15 KW of solar power and recycled materials. Its timeless architecture is provided by the use of natural zinc, tallowwood, slate and travertine that contribute to a robust aesthetic.











































More Similar Articles Like This
6 Garden and Lawn Tips to Get Ready for Spring
Astonishing El Tovar by the Sea
A Superb Italianate Mansion in California, USA
Pure Perfection: Discover the Top White Paint Colors for a Flawless Décor
Outstanding Bodrum Houses in Yalikavak, Turkey
Spectacular Luxury House in Sarasota, Florida by DSDG Inc. Architects
Benjamin Moore Exterior Paint: Vibrant Shades for a Striking Home
These Top Tips Will Help You to Turn Your Garden into the Ultimate Glamping Site!