Agraz Arquitectos are the ones who designed the 5,920-square-foot SJC House, situated in San Juan Cosala, Jalisco, Mexico. This beautiful weekend residence offers magnificent views of the Chapala Lake, being a getaway from the noisy and crowded city.
From the beginning the home impresses with its infinity pool and large terrace with sunshade, the perfect place to relax and have a great time with friends and family.
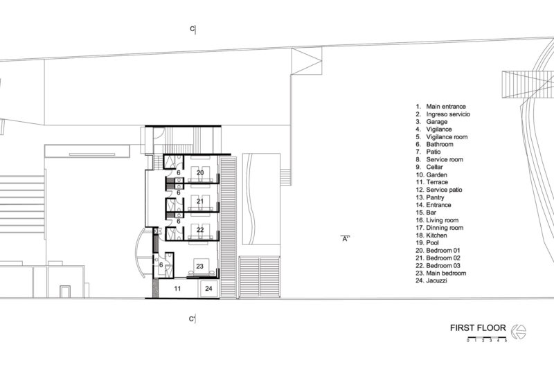
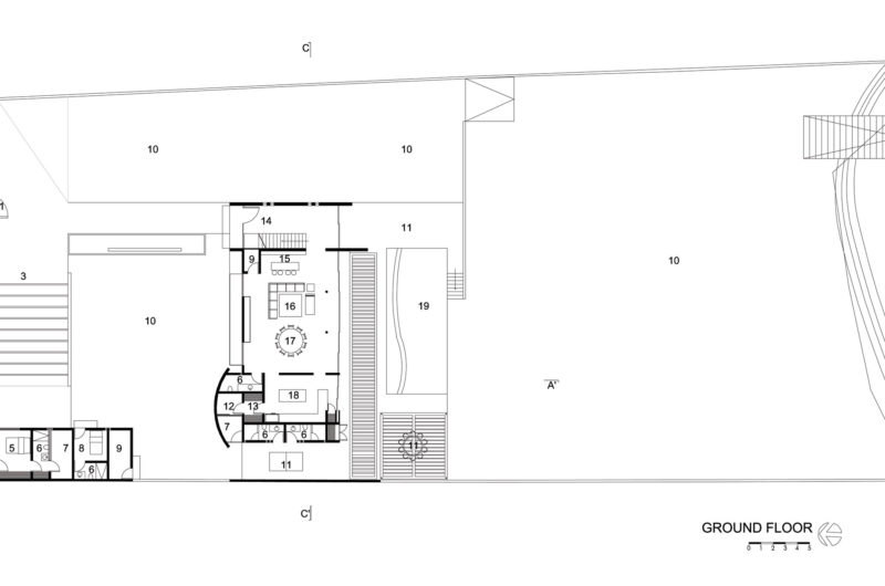
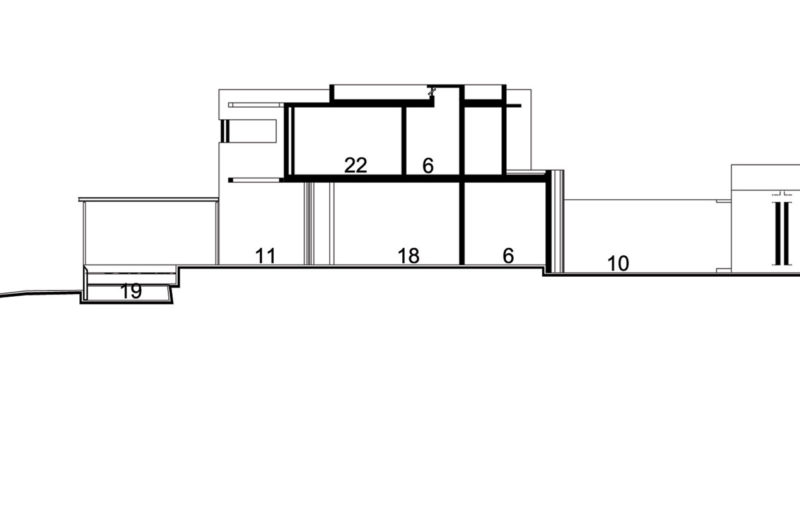
The two-story house features four bedrooms, each with bath and dressing room, as well as a main suite with private terrace, from which one can admire the San Juan Cosala Mountains. The dinning, living and kitchen are connected into a vast area, which also includes a bar and a wine cellar.
Photos by: Mito Covarrubias




































More Similar Articles Like This
Opulent Mandarin Oriental Hotel in Paris
Loving Luxury at Mardan Palace Resort, Turkey
Dreamy Oceanfront Chateau In West Vancouver, Canada
Heavenly Lily Beach Resort & Spa In Huvahendhoo, Maldives
The JKC1 House in Bukit Timah, Singapore
Marvelous Anantara Dhigu Resort
Best paint colors for the living room
Tips for Choosing the Right Blue Paint Color for Your Dining Room