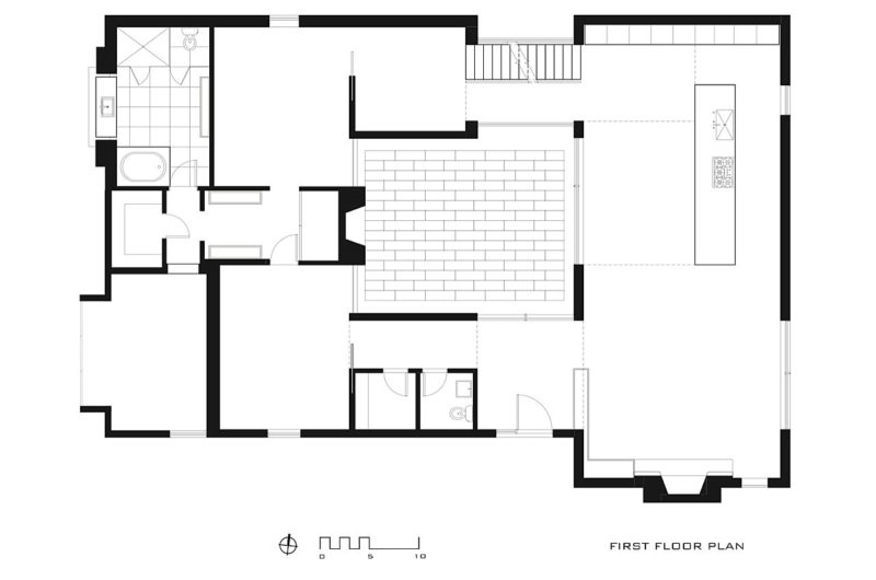
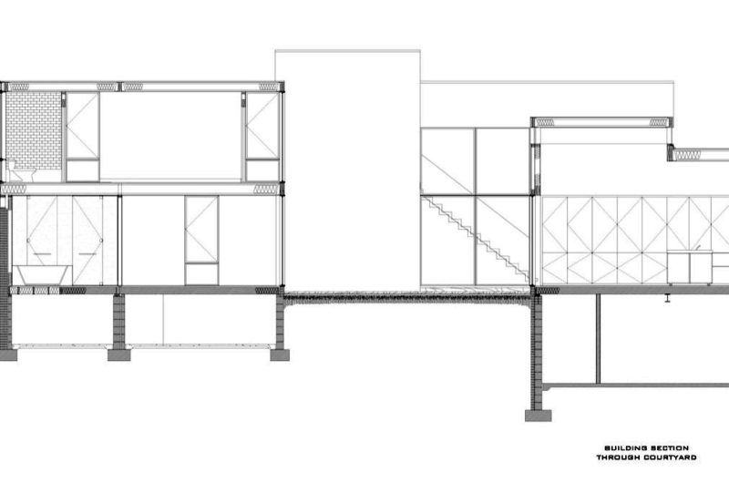
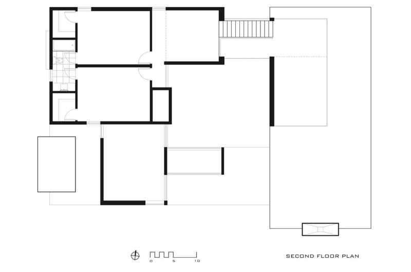
Completed in 2007 by Virginia-based studio David Jameson Architect, the Jigsaw Residence project is a two-story single-family residence situated in Bethesda, Maryland, USA.
Using exceptional architectural techniques, David Jameson Architect managed to transform a single story suburban house into a modern and intricately designed house. The building resembles a tridimensional puzzle made of volumes linked by movement and space. The boundaries between outside and inside have been broken, and wall and glass mingle to form a compound of void and solid, space and light.
Stucco planes were used for the external walls and plaster for the internal ones, while clerestory glazing and window constructs offer privacy and beautiful views of the surrounding area.
The Jigsaw Residence is the perfect example of how imagination can be transformed into real, beautiful pieces of art.
Photos by: Paul Warchol Photography



















More Similar Articles Like This
Gorgeous And Spacious Home In Sunset Strip
Amazing Four Seasons Resort Bora Bora
Stunning Banyan Tree Ungasan Bali in Indonesia
Santa Barbara Style Home in Paradise Valley, Phoenix
The JKC1 House in Bukit Timah, Singapore
Lovelli Residence: Mediterranean-Style Dwelling in Bali
The Superb Villa Verai on Phuket Island, Thailand
Unique Click Clack Hotel In Bogota, Colombia