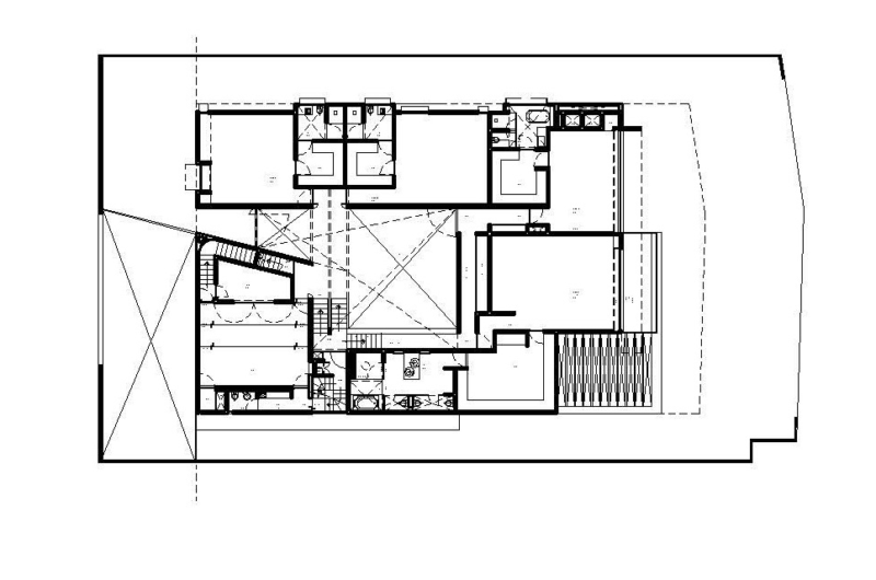
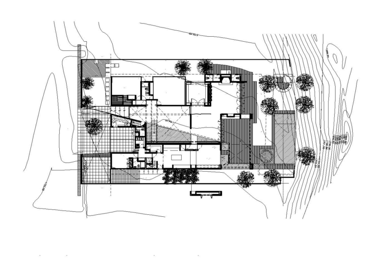
The House S is a great contemporary residence in Zapopan, Jalisco, México designed by Lassala+Elenes Arquitectos, featuring 1,080 sqm of luxurious space. It amazes by simplicity and clean lines due to its geometric shape and great interior design. The house is also identifying itself with the place, borrowing specific elements from Mexico. The whole construction is divided in two parts: one made out of stone and the other one from stucco that come very naturally together being separated just by a vertical glass.
The cumarú wood was the raw material for the main door and the garage doors. The double-height central gallery is the star of the house that can be accessed from all rooms. Beauty consists in details and this is the principledesigners used in building the house using the finest materials such as beige ivory marble, cumarú wood, porcelain tiles, hardwood cumaru flooring, black volcanic stone and chocolate travertine marble. With that being said, visualization is your responsibility. Enjoy!

















More Similar Articles Like This
Boracay Resort & Spa in the Fascinating Philippines
Different Types Of Foundations For Summer Houses and Garden Buildings
The Superb Maradiva Villas Resort & Spa in Mauritius
Lawn Care Tips, The Basics For Each Season
Seamlessly Apartment by the Beach by ZZ Architects
Extraordinary Constance Halaveli Maldives Resort
Stunning Banyan Tree Ungasan Bali in Indonesia
Heavenly Lily Beach Resort & Spa In Huvahendhoo, Maldives