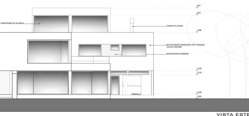
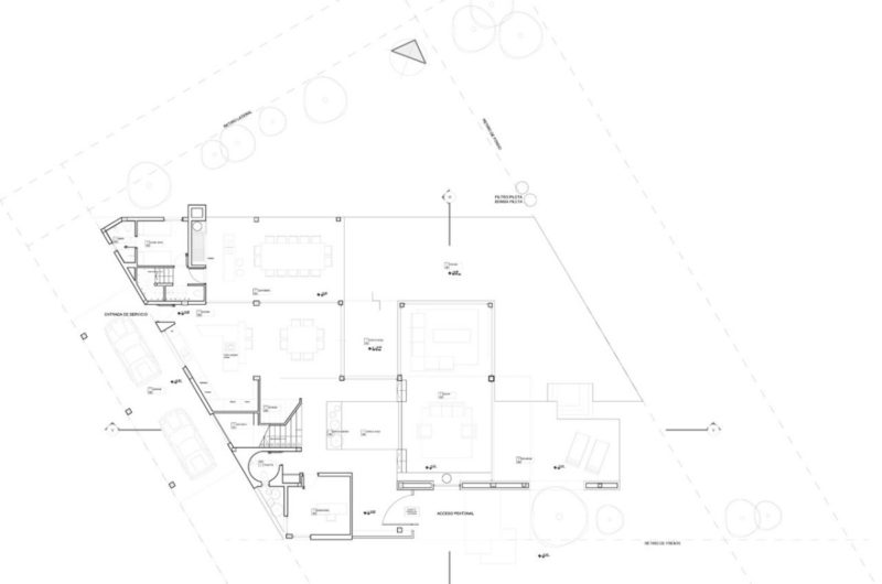
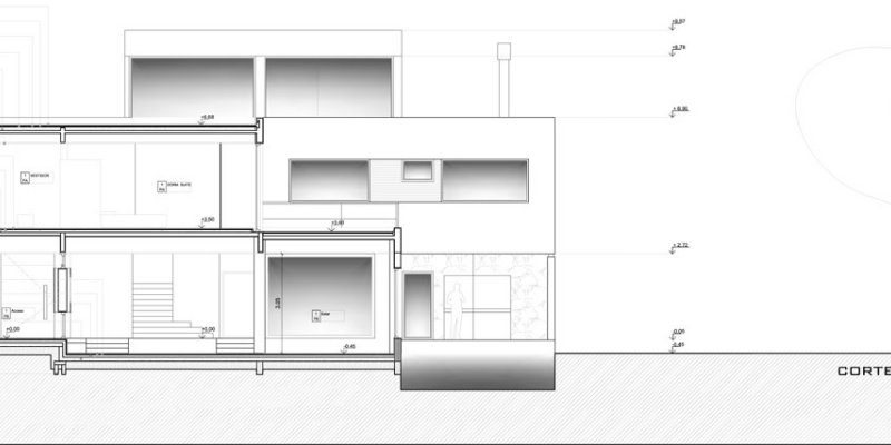
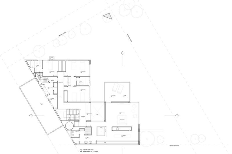
Carrara House was completed in 2010 by Andres Remy Arquitectos. Situated in Pilar, Argentina, the 7,100-square-foot residence impresses with its white exterior, and the white Carrara marble that dominates the interior. This is what gives the entire building an elegant and sophisticated feel.
Photography by Alejandro Peral


































More Similar Articles Like This
Vibrant Wood Tones: Explore a Spectrum of Spray Paint Colors!
Benjamin Moore Exterior Paint: Vibrant Shades for a Striking Home
Unique Click Clack Hotel In Bogota, Colombia
10 Different Types of Blue Paint Colors
Secluded Naladhu Island in Maldives
The Sophisticated Casa Villa Flamingo in Spain
Vibrant Concrete Floor Paint Colors to Elevate Your Space
Beach House CN – A Superb Contemporary Home in Peru