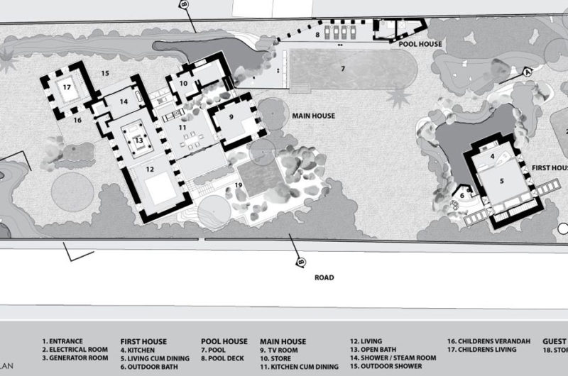
Located in South India, this lovely contemporary compound includes three lovely houses designed by Mancini and Govinda Luke Bowley.
The project was completed in 2009 in a countryside environment, and the property occupies 4,000 square meters (43,055 square feet) of land. This includes the three houses, a small forest, a pool with pavilion, tropical rocks, sunken garden with well, savanna, suspended gardens, and outdoor bathrooms.
Even though the property ensures permanent connection with the outdoors, no compromise has been made in terms of privacy and intimacy. The common areas on the ground floor are in a close relationship with the living quarters upstairs. The sloping roofs help keep this connection permanent. Traditional architecture is beautifully combined with modern features, such as large roof overhangs, and huge windows.
The buildings are also sustainable, flaunting innovative ways of keeping the interiors cool in the hot climate of the area.





















More Similar Articles Like This
Loving Luxury at Mardan Palace Resort, Turkey
Santa Barbara Style Home in Paradise Valley, Phoenix
Exploring the New World of Luxury Hoteling
Astonishing El Tovar by the Sea
Shadowed Depths: Vintage-inspired Paint Colors for Dark Basements
A Superb Italianate Mansion in California, USA
Gayton Road Residence by Paxton Locher Studio
Stunning Sustainable Home in Costa Rica by SPG Architects