Boasting 13,454 square feet of living space, House H is a modern abode that was completed in 2013 by a firm named OZ Arq. It was constructed using reliable materials such as steel and concrete, and it includes a series of intertwining volumes that perfectly define its different interior and exterior living areas. The owner wanted to be able to enjoy his privacy and so the house faces a beautiful garden and turns its back on the street.
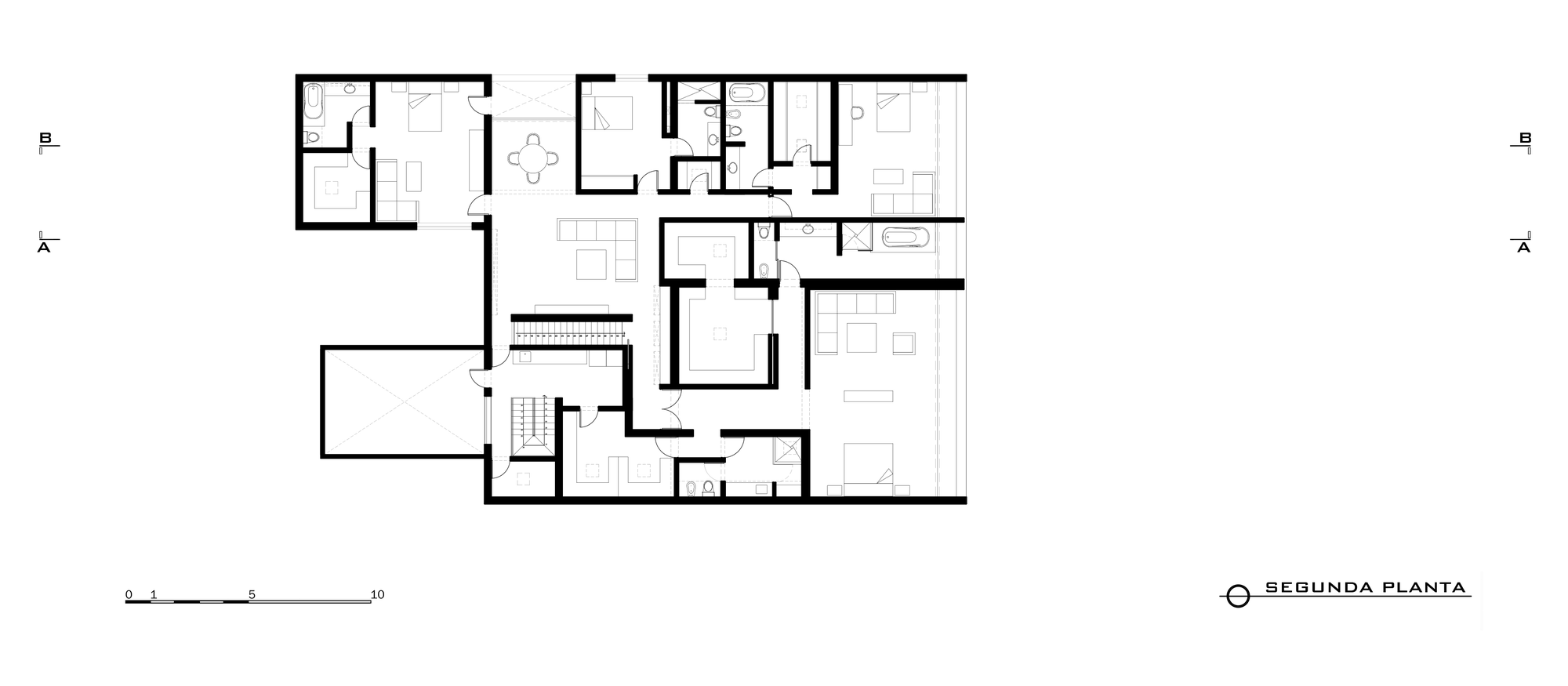
Consequently, the entryway is reached via a bridge that passes over a sunken garden, which also channels light towards the underground living spaces and studio. House H features a total of three levels, including an underground level with a parking space, a play room, a service area and a study. The ground floor incorporates the kitchen, dining area, living room and an office, while the second floor flaunts private living arrangements that encircle a family room.
From the architect:
House H has been developed on a 1,000 m2 plot, on a busy road in the outskirts of Lima. The project developed as an architecture that analyses and recognizes the context, generates paths and handles an extensive program while keeping as much open space for landscape as possible.
The proposal responds to the request of the owner who sought for privacy by turning its back to the street and facing towards the garden and the hills behind.
The access to the house is through a bridge over a sunken garden that works as a moat and transitional space between the exterior and the interior at the same time that becomes a light source for underground studio and living areas while emphasizing the entry way hierarchy.
To gain more garden space the house was developed as a three level structure; the study, play room parking, and service area were built underground, while on the ground floor the living room, dinning, kitchen and office open up in search of views of the landscape. On the second floor of the house you find the private spaces around a family room, controlling the views and maintaining its privacy.
The house was built completely in concrete and steel to express its structural characteristics and plasticity allowing it to be molded in to volumes that intertwine creating voids to generate light and defining the interior and exterior spaces.
Architects: Jaime Ortiz de Zevallos
Location: Lima, Peru
Site Area: 1000m2
Area: 1250.0 sqm
Year: 2013
Photographs: Juan Solano












More Similar Articles Like This
Boracay Resort & Spa in the Fascinating Philippines
Extraordinary Constance Halaveli Maldives Resort
Lovelli Residence: Mediterranean-Style Dwelling in Bali
Stunning Banyan Tree Ungasan Bali in Indonesia
These Top Tips Will Help You to Turn Your Garden into the Ultimate Glamping Site!
Amazing Four Seasons Resort Bora Bora
Exploring the New World of Luxury Hoteling
Dreamy Oceanfront Chateau In West Vancouver, Canada