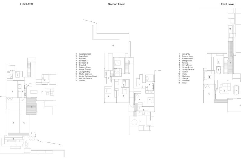
Orchard Way is a modern residence in Vancouver, Canada that was designed by a firm called McLeod Bovell Modern Houses and was completed in 2011. This home is modern, spacious and luxurious without a doubt, but aside from its amazing design and generous list of amenities, it’s also worth mentioning that it flaunts breathtaking views of the ocean and of the city.
These panoramas can be admired in their entire splendor from the main living room, which features a fireplace, comfortable seating arrangements and a connection to an outdoor patio with glass railing. The abode was built using concrete, glass and wood elements – a combination that never fails to impress. Outside, a swimming pool is flanked by loungers and a fireplace that can transform any regular night out into a dreamy, memorable experience.
The bedrooms are spacious, tastefully furnished and boast floor-to-ceiling windows that frame the majestic views of the surrounding environment.
From the McLeod Bovell Modern Houses:
A cross-pitched site alignment allows the house to pivot on the landscape, connecting to grade on all levels and maximizing relationships to the outside. A deep foreground, high placement, and expansive, protected views west and south create a rare opportunity for open interiors and broad ocean views that still offer a sense of privacy in a house that operates “in-the-round”.














More Similar Articles Like This
Amazing Four Seasons Resort Bora Bora
Seamlessly Apartment by the Beach by ZZ Architects
Spectacular Luxury House in Sarasota, Florida by DSDG Inc. Architects
Wonderful Yachting Club Villas at Elounda Beach by Davide Macullo Architects
Beautiful Apartment in Stockholm for $1 Million
Exquisite Crossacres Mansion In Surrey, England
Lawn Care Tips, The Basics For Each Season
Unique Click Clack Hotel In Bogota, Colombia