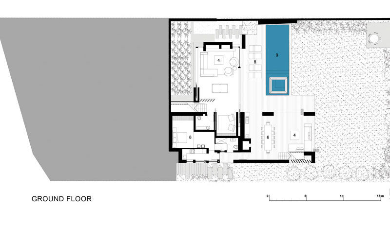
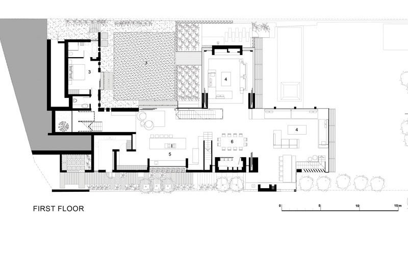
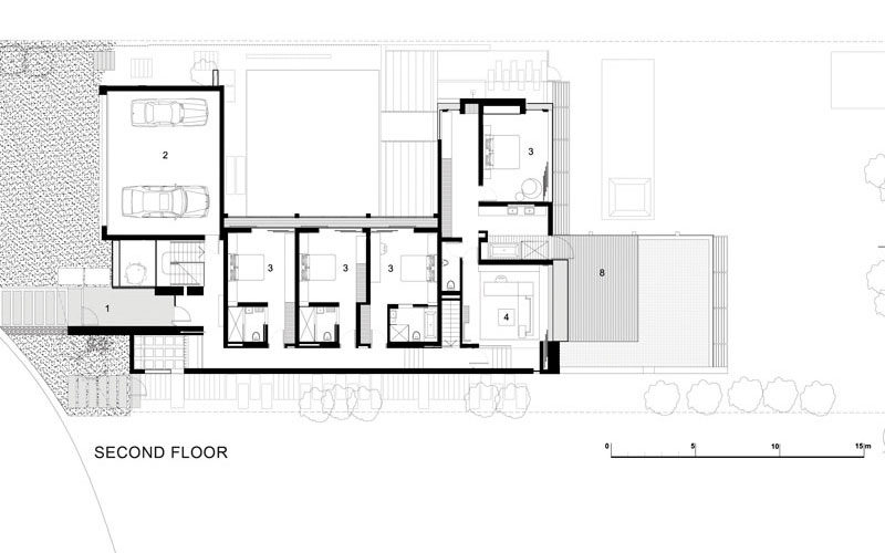
We just love this three-story contemporary residence by SAOTA and Three 14 Architects. It is called Glen 2961 House and it is located in a suburb of Cape Town, South Africa, called Oranjezicht. The clients had an older home on the property, but they wanted it rebuilt and upgraded to meet the specific needs of their family.
The architects suggested that they started with a clean slate, so the owners decided to follow the specialists’ advice. Judging by the photos below, we are pretty sure that they have absolutely no reason to regret their decision. The new home follows the shape of the site and has its two lower levels seamlessly connected to the beautiful terraces and gardens at all times.
In order to enhance this openness towards the surroundings, the living areas were endowed with large sliding glass doors. The glass handrails of the terraces also play an important role in this picture. Check out the photo gallery below and be amazed by this outstanding project!
Photos by Adam Letch





















More Similar Articles Like This
The Superb Maradiva Villas Resort & Spa in Mauritius
Spectacular Rooftop Apartment by Innocad
How Seattle Lawn Care Service Deals With Overgrown Lawns
Exploring the New World of Luxury Hoteling
Seamlessly Apartment by the Beach by ZZ Architects
70 Shades of Green: Benjamin Moore’s Vibrant Paint Colors
5 Ways to Turn Your Yard Into a Fancy Space
Beautiful Apartment in Stockholm for $1 Million