Sketched out and built by Raimundo Anguita in Chicureo, Chile, the Casa Hacienda de Chicureo is a cozy, luxurious and spacious abode that impresses with a generous amount of high-end amenities and comforts. The residence was built on a lot size of 32.000 square feet, in close proximity to a beautiful golf field.
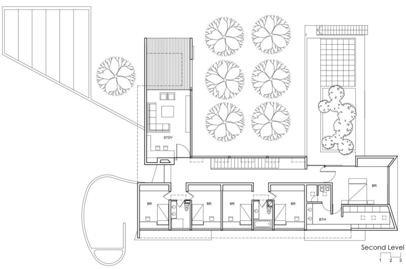
The layout of this modern residence features a distinct “U” shape that encircles a central garden. Flaunting 2 floors, the public and private areas of the house are separated efficiently, which serves to increase the quality of life of its residents. The first floor comprises the public areas such as the main living room, kitchen, and dining room, while the second floor houses the bathrooms and bedrooms.
The main materials used in the construction process include concrete and glass. The glass, even though it is quite sturdy in its own right, gives off a sense of delicacy and feebleness that contrasts beautifully with the robust and solid texture of the concrete.
Regarding the outdoor areas, it’s worth mentioning that the Casa Hacienda de Chicureo flaunts a remarkable swimming pool that it surrounded by lush greenery, but the comfortable lounging areas and terraces are also quite remarkable as well.
Photos by Oliver Llaneza















More Similar Articles Like This
Marvelous Anantara Dhigu Resort
Extraordinary Constance Halaveli Maldives Resort
Amazing Four Seasons Resort Bora Bora
Stunning Banyan Tree Ungasan Bali in Indonesia
Green Gables Home In Fairfield, Connecticut, United States
Spectacular Rooftop Apartment by Innocad
A Superb Italianate Mansion in California, USA
6 Garden and Lawn Tips to Get Ready for Spring