The Fidar Beach House is a home for a family of five and three guests that is located in Jbeil, Lebanon. It was designed by RaëdAbillama Architects who took advantage of the natural qualities of the site by integrating the project into the existing landscape.
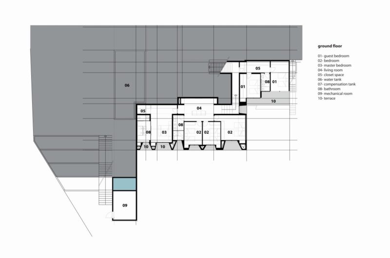
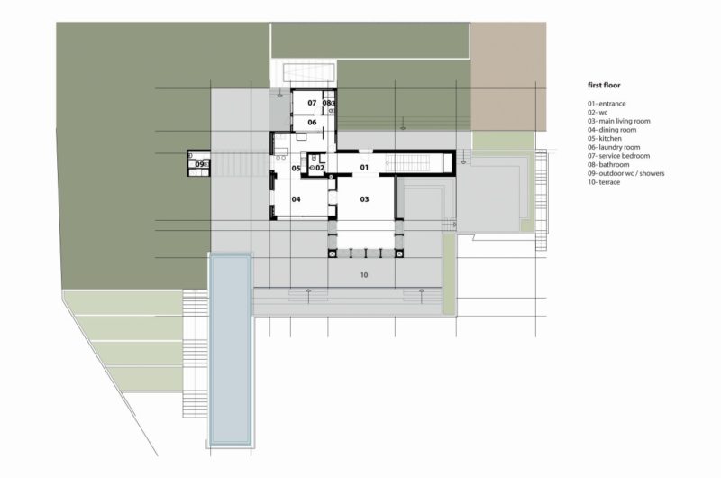
While the public spaces are located at the entry level, the private spaces are placed at the lower level. The top level built as a platform, provides beautiful views that capture the shoreline. The levels of public spaces are separated by a threshold created by grouping the stairwell and the entrance hall with lighting and ventilation shafts. The outdoor pergola and the shower cabin come as an extension for this demarcation line. This platform leans on the bedrooms which are located near the shore.
The guest quarters own the independence of a guest house but still remains connected to the main house.
Photos by Géraldine Bruneel



















More Similar Articles Like This
Stunning Sustainable Home in Costa Rica by SPG Architects
The Superb Villa Verai on Phuket Island, Thailand
These Top Tips Will Help You to Turn Your Garden into the Ultimate Glamping Site!
Behr’s Brilliant Blues: 70 Shades of Stunning Paint Colors
Santa Barbara Style Home in Paradise Valley, Phoenix
A Superb Italianate Mansion in California, USA
Astonishing El Tovar by the Sea
Plain Geometric Residence Designed by Lidija Dragisic