We all need some quiet time in the privacy of our own house after spending a hard day at work. Imagine you could have your quality time in the privacy of your new extraordinary House in the Garden. Either you want to relax in your cosy bedroom, take a walk and a breath of fresh air in your own garden or swim in your fancy pool, you can do all these things and more in a place where nature meets modern times.
It’s a brightly lit house due to it’s enormous windows that offer the view of an extraordinary garden designed to be the perfect place for the contemporary human being.
The privacy of the house it’s provided by the hedge, trees and bushes that also are enchanting the eyesight. Besides all these aspects, space and luxury are two important assets of the house. This house means comfort, luxury, tranquility, investment for a balanced life.
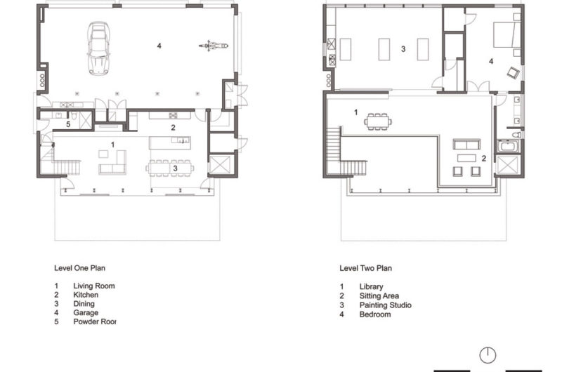
House in the Garden designed by Cunningham Architects and Hocker Design Group.
Photos by: James F. Wilson & Gisela Borghi






























More Similar Articles Like This
Seamlessly Apartment by the Beach by ZZ Architects
Amazing Four Seasons Resort Bora Bora
The Superb Villa Verai on Phuket Island, Thailand
Saguaro Palm Springs by Joie de Vivre
Santa Barbara Style Home in Paradise Valley, Phoenix
6 Garden and Lawn Tips to Get Ready for Spring
Exploring the New World of Luxury Hoteling
Best paint colors for the living room