Originally a much simpler residence from the 1960s, the Prince Philip Residence is the result of an impressive expansion project that was designed by Thellend Fortin Architects. The project was completed in 2014 and involved the addition of a second story and of large windows that welcome natural light throughout most rooms.
The new living spaces were added as part of a ribbon that extends to the side of the original structure. The ribbon is not linear but features a folding and unfolding design that ensures a superb, varied panorama. The cantilevered extension boasts concrete panels and faces a beautiful limestone-lined swimming pool, which is flanked by a white concrete patio. The Prince Philip Residence in Montreal is a perfect example of contemporary architecture and design, and it can support a carefree and luxurious lifestyle.
From the architect:
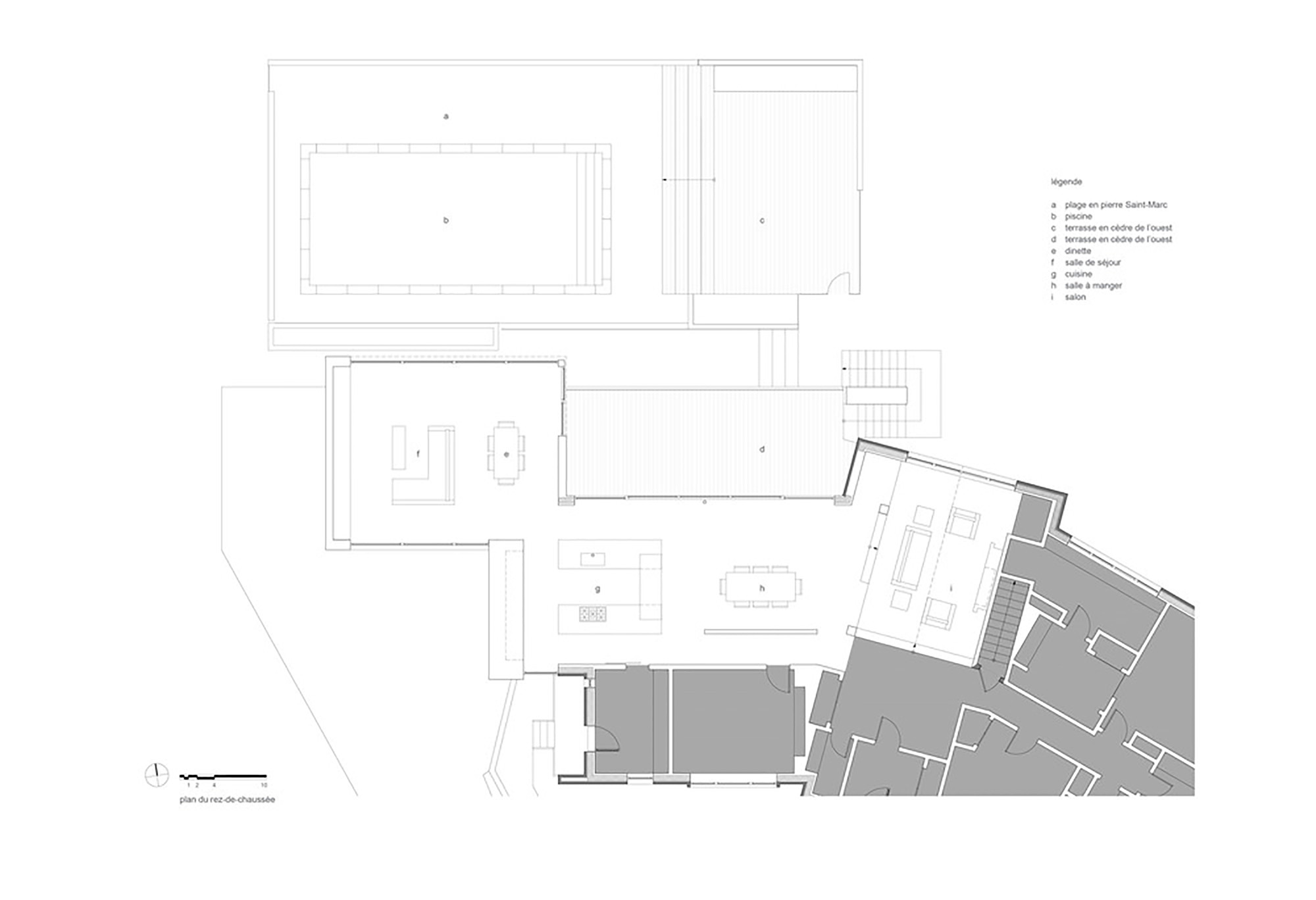
This project involved the expansion of a spacious single-story Outremont residence built in the 1960s. Situated on a site with a steep incline and majestic view, the two-floor expansion was designed to offer a generous window on the horizon.
The architectural concept involved the addition of living spaces in the form of a long ribbon situated laterally to and in line with the contours of the existing structure. This ribbon folds and unfolds, thus offering multiple views of the surrounding landscape.
The interior comprises open adjoining living spaces bathed in natural light. The pale-hued textures and materials enhance the spacious aspect of the rooms.
Clad in anthracite-coloured concrete panels, the cantilevered extension reflects in the St. Marc limestone-lined swimming pool, surrounded by the suspended deck in white-painted concrete. This mineral setting marries perfectly with the impressive canopy of mature maple trees that offer shade to this oasis at the heart of the city.
The extension takes advantage of the site’s unique topography, overlooking the pool and landscaped terrace like a mirador.
Architects: Thellend Fortin Architectes
Location: Montreal, QC, Canada
Project Year: 2014
Photographs: Charles Lanteigne photo
















More Similar Articles Like This
Green Gables Home In Fairfield, Connecticut, United States
These Top Tips Will Help You to Turn Your Garden into the Ultimate Glamping Site!
Vibrant Wood Tones: Explore a Spectrum of Spray Paint Colors!
Different Types Of Foundations For Summer Houses and Garden Buildings
Exploring the New World of Luxury Hoteling
Boracay Resort & Spa in the Fascinating Philippines
Stunning Banyan Tree Ungasan Bali in Indonesia
Behr’s Brilliant Blues: 70 Shades of Stunning Paint Colors