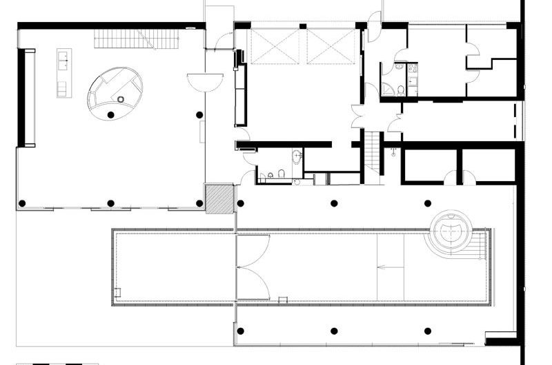
The Water Patio House located in Odessa, Ukraine, was designed by Drozdov & Partners. It features a large swimming pool that connects the space of the ground floor with the terrace and enhances the view towards the sea.
Beautiful views can be accessed from the first floor, especially from the owner’s sleeping room and bathroom.
It’s not too large and not too small, but it’s the perfect home where you’d want your children to grow.
Photos by Andrey Avdeenko























More Similar Articles Like This
Beach House CN – A Superb Contemporary Home in Peru
5 Ways to Turn Your Yard Into a Fancy Space
Unique Click Clack Hotel In Bogota, Colombia
Exploring the New World of Luxury Hoteling
Spectacular Rooftop Apartment by Innocad
Gorgeous And Spacious Home In Sunset Strip
Tips for Choosing the Right Blue Paint Color for Your Dining Room
Beautiful Apartment in Stockholm for $1 Million