Built in 2009 in New Farm, Brisbane in Australia, the Oxlade House is a remarkable modern home that was envisioned by a local studio called Arkhefield, whose experts made sure that its design would be instantly recognizable. This design involves a sloped rear wall made out of concrete as well as a steel roof that contributes to an edgy and contemporary allure.
This home is able to meet and surpass even the most demanding expectations regarding comfort and luxury, especially since it was equipped with a generous amount of high-end amenities and facilities. The kitchen boasts a modern design and features state-of-the-art appliances as well as high quality furnishings. It’s also worth mentioning that the kitchen is linked to a wooden terrace thanks to a series of sliding doors that minimize the boundaries between the indoors and outdoors with great efficiency. The windows are large and ensure plenty of natural illumination throughout the main living areas, but they are also equipped with shutters just in case the owner would like to block the sun’s rays for thermal or visual comfort.
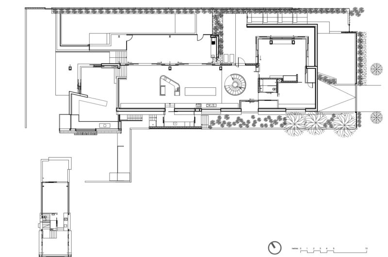
The 3 levels of the Oxlade House are linked by a spectacular spiraling staircase that flaunts contrasting tones of dark brown and pure white.
From the Arkhefield:
New Farm in Brisbane’s inner city has undergone a period of urban renewal, adding a contemporary layer to a suburb noted for its traditional character housing. The Oxlade House is sited within a transitional zone between traditional Queenslanders and a mix of post-]1960s housing stock. Despite an eclectic streetscape, town planning codes dictated that the house must adopt a Character Housing typology. This planning constraint challenged and grounded the client’s brief for a bold contemporary architecture. Whilst the house has a non-]traditional expression, it interprets and abstracts traditional typologies of a solid ‘core’ with integrated verandas, legible roof, and layered screening.
The driving concepts behind the house are ‘transition’ and ‘orientation’ reinforced by the roof as generator of form and space. Moments of abrupt transition create difference, where as moments of seamless transition create sameness or openness. The house explores a variety of spatial and experiential transitions from public to private, hard to soft, solid to filter. The landscape and outdoor spaces are interwoven within the navigation and experience of the house. The filtered verandah becomes a buffer to the elevated living room as the first of a linear progression of spaces, from private contained rooms to open, engaged family spaces.
The adjacency of the outdoor spaces seamlessly transitions with and expands the family realm. The corners of each room are peeled back to re-orientate attention to the pool, deck and garden.
The roof defines the spatial experience of the house, orienting all spaces to the north east outdoor areas, and capturing service areas along the side boundary. The boldly sloping wall and roof, form an armature to the south responding directly to overlooking issues, setback requirements and northern orientation. The directional extrusion of the roof adapts to allow functional and contextual contingencies, forcing shifts in proportion, and in turn, exaggerating the roof form.
The dynamism of the roof is an emerging theme in a lineage of Arkhefield’s work. The Oxlade House continues an exploration into the roof as a subtropical protective device, capturing and defining space. Climatic responses combine with programme and place, informing orientation and transition.
These guide a directional language such as extruded eaves, folding, wrapping or capturing of rooms. there is little distinction on ‘wall’; walls are permeable, invisible or moveable. By drawing from these contextual conditions, a journey ensues in abstraction and invention, often offering unexpected results.
Photos by Scott Burrows
















More Similar Articles Like This
Exceptional Coronado Bay Front Estate in California
Outstanding Bodrum Houses in Yalikavak, Turkey
Green Gables Home In Fairfield, Connecticut, United States
Behr’s Brilliant Blues: 70 Shades of Stunning Paint Colors
Exquisite Crossacres Mansion In Surrey, England
Wonderful Yachting Club Villas at Elounda Beach by Davide Macullo Architects
Different Types Of Foundations For Summer Houses and Garden Buildings
Extraordinary Constance Halaveli Maldives Resort