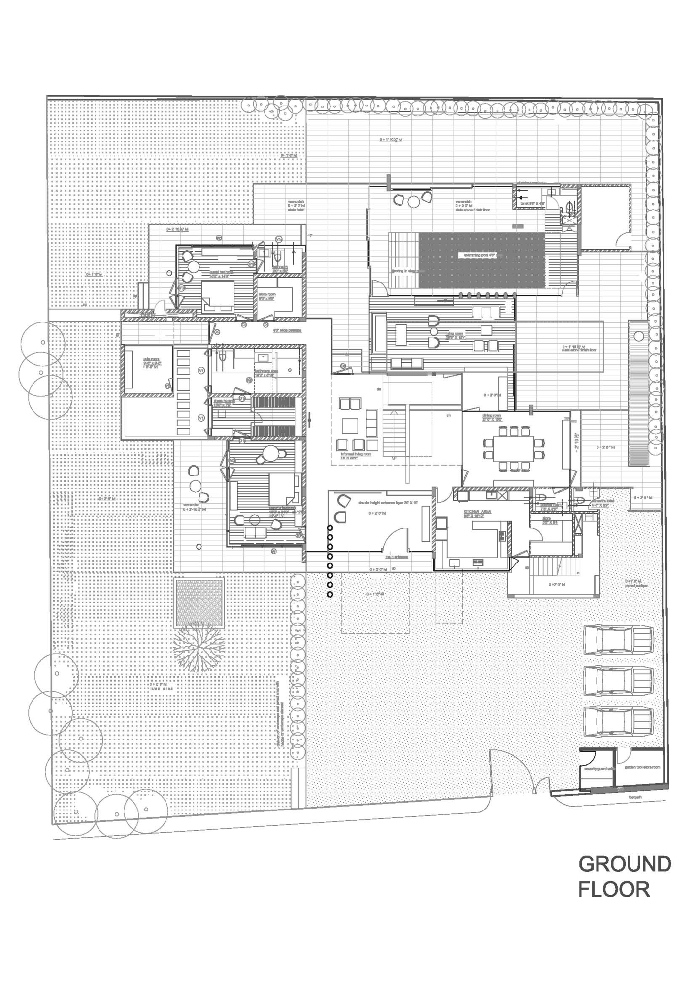
The Poona House was completed in 2008 by Rajiv Saini. It is located in Mumbai, India and was designed as the owner wished. The lounge offers direct visual access of the entire house, the rooms are arranged around the central core, the separation between the entrance lobby and the lounge being made by a suspended double height screen in slatted wood.
The residence nestles within a verdant green area, offering the owners privacy and tranquility. All the public spaces are situated on the ground level, while the private ones are on the upper level. The blurring of the boundaries between the outdoor and indoor space is faded by glass enclosures along the walls on the lower floor.
The indoor pool is situated just underneath the daughter’s bedroom. Smooth and rough were mixed nicely in order to create a safe, secure and pleasant environment.


























More Similar Articles Like This
Spectacular Luxury House in Sarasota, Florida by DSDG Inc. Architects
10 Different Types of Blue Paint Colors
Plain Geometric Residence Designed by Lidija Dragisic
Vibrant Concrete Floor Paint Colors to Elevate Your Space
Gorgeous And Spacious Home In Sunset Strip
5 Ways to Turn Your Yard Into a Fancy Space
Secluded Naladhu Island in Maldives
The Sophisticated Casa Villa Flamingo in Spain