The VA House is a contemporary and comfortable dwelling that was completed in 2013 by Atelier d’Arquitectura J. A. Lopes da Costa. It can be found in Torreira, Portugal and flaunts a beautiful exterior design that is based on a pair of overlapping volumes out of which the lower one is more transparent and seemingly more fragile.
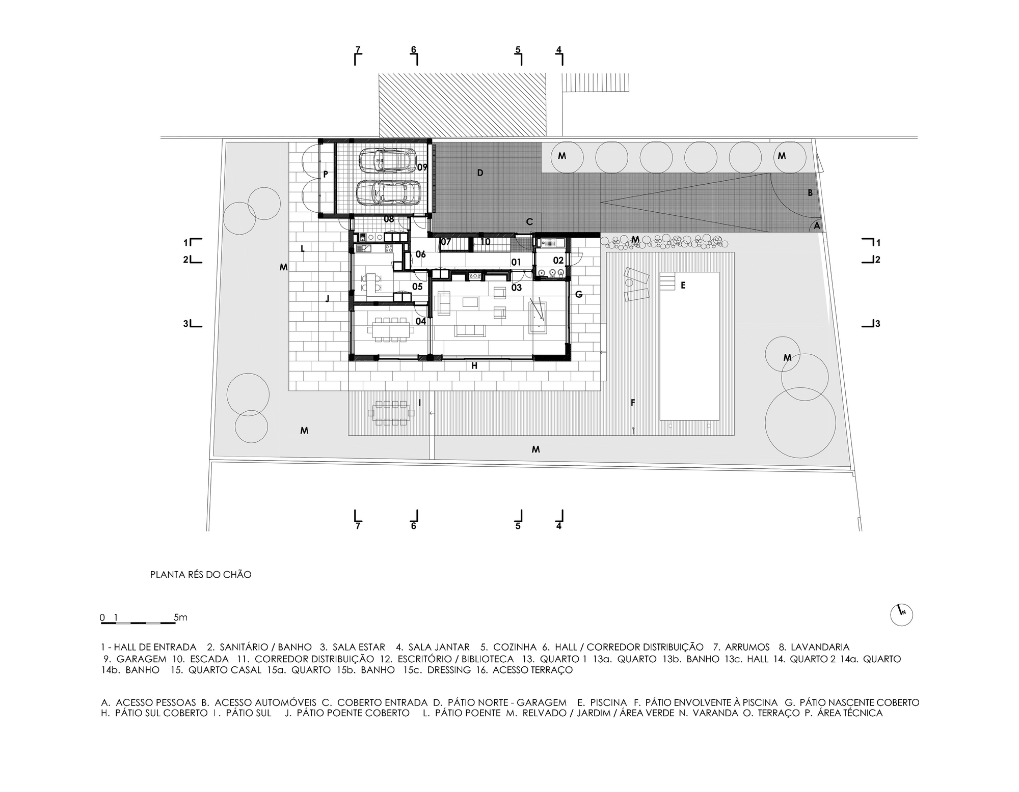
The upper level is dimmer and features a series of balconies facing south that ensure great views of the surroundings. The ground floor is connected to a swimming pool to the east, while the living room can be found in the southern area. The dining area is adjacent to the living room, while the laundry and the kitchen face west. The upper floor incorporates three bedrooms as well as an office. The roof boasts a Jacuzzi and can be reached using a triangular component that is a part of the interior floating staircase.
From the architect:
The house emerges with two overlapping structures topped by a triangular element (the stairs leading to the terrace). The lower structure, more transparent and more “fragile”, supports the higher structure, dimmer and containing more rhythmic openings, where small volumes – the balconies – punctuate to the South.
The building adopts the planned site in the subdivision, being the upper floor slightly offset from the ground floor to create some volume animation, providing areas for shelter and shade.
The villa, more closed to the North, shelters the entrance through a paved path that also leads to the garage.
It faces mainly the East and the South, to the Ria and the sun. To the West a courtyard was created to support the kitchen and the laundry.On the ground floor, over viewing the Ria and the pool to the East, and quite open to the South, lies the living room. Next to this, and in direct communication, was located the dining room, which creates a continuous transparency on the outdoor patios from West to East. The kitchen and the laundry are turning to the West courtyard.
On the upper floor, the office has a prime location, taking advantage of a strong visual relationship with the Ria. The three bedrooms face the South, in a rhythmic modulation accentuated by individual balconies serving each
room.It was also created an access to the roof, where you can enjoy the views and a jacuzy placed there. This access is defined by a triangular component along the stairs, forming a sculptural element that seems the sails sailing in the
Ria.
Architect In Charge: José António Lopes da Costa, Tiago Meireles
Co Workers: Joana Jorge
Year: 2013
Photographs: Manuel Aguiar
Engineering: VELNOR
Project Date: 2008-2009











More Similar Articles Like This
Stunning Sustainable Home in Costa Rica by SPG Architects
Benjamin Moore Exterior Paint: Vibrant Shades for a Striking Home
Gayton Road Residence by Paxton Locher Studio
Marvelous Anantara Dhigu Resort
5 Ways to Turn Your Yard Into a Fancy Space
Lovelli Residence: Mediterranean-Style Dwelling in Bali
Spectacular Luxury House in Sarasota, Florida by DSDG Inc. Architects
The Superb Maradiva Villas Resort & Spa in Mauritius