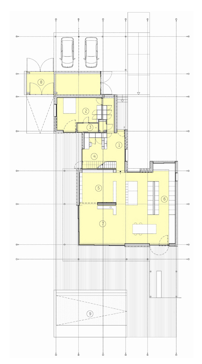
The fantastic House R was completed in 2012 by Gardera-D Architecture, and it is located in Anglet, France. This gorgeous residence was built on 2 levels, featuring enough living space to accommodate a large family in complete comfort.
Accommodations include 3 bedrooms as well as a special playground area for kids on the first floor, while the main living space as well as the office space and a secondary bedroom can be found on the ground floor. The interior design involves open spaces and clean, white walls complemented by large glass panels that welcome light within while ensuring uninterrupted views of the outdoors. The furnishings are of the highest quality, just like the rest of the amenities and facilities found throughout this exquisite abode.
















More Similar Articles Like This
The JKC1 House in Bukit Timah, Singapore
Superb Luxury Penthouse in Portomaso, Malta
Extraordinary Constance Halaveli Maldives Resort
Unique Click Clack Hotel In Bogota, Colombia
Astonishing El Tovar by the Sea
70 Shades of Green: Benjamin Moore’s Vibrant Paint Colors
Shadowed Depths: Vintage-inspired Paint Colors for Dark Basements
Wonderful Yachting Club Villas at Elounda Beach by Davide Macullo Architects