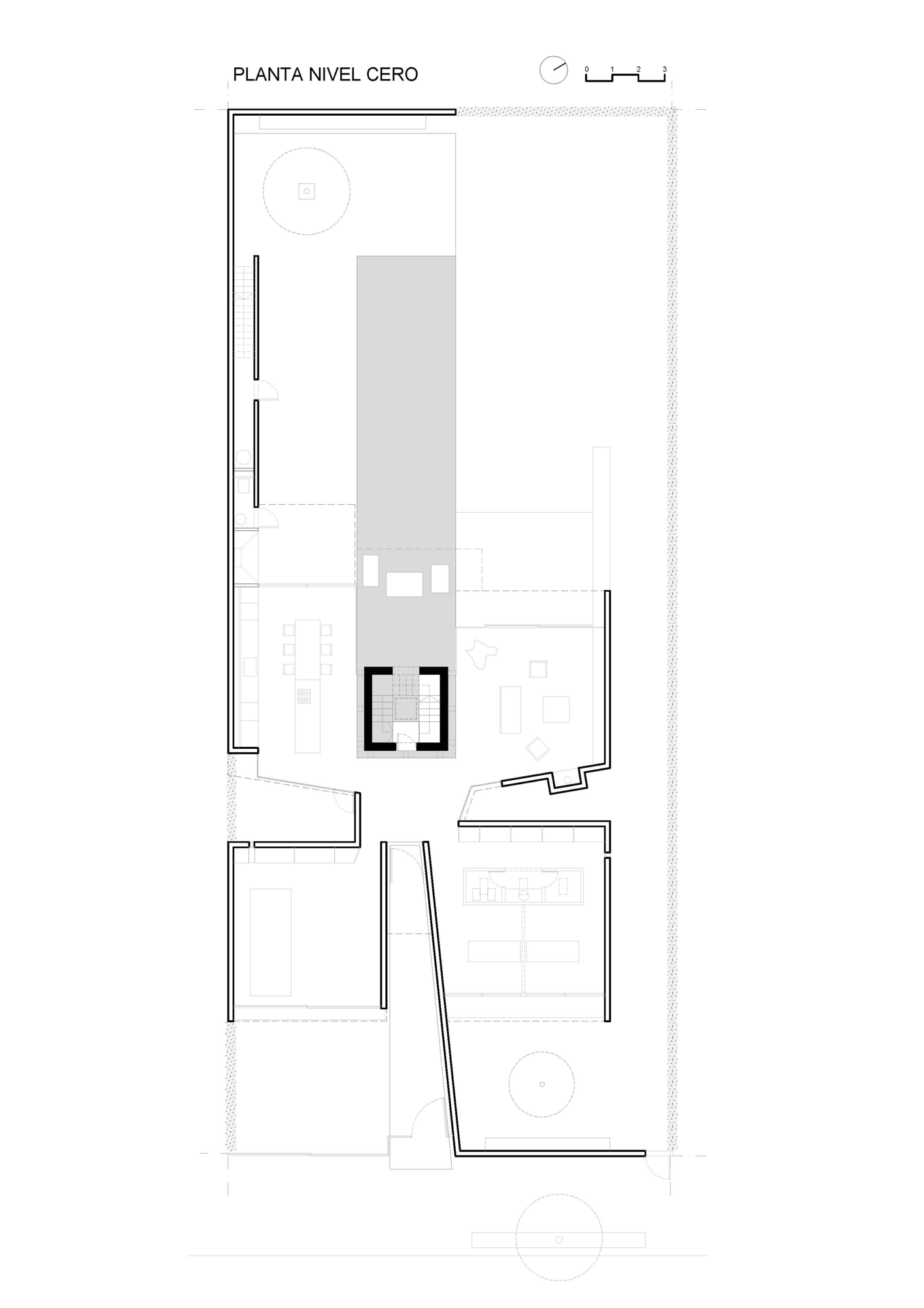
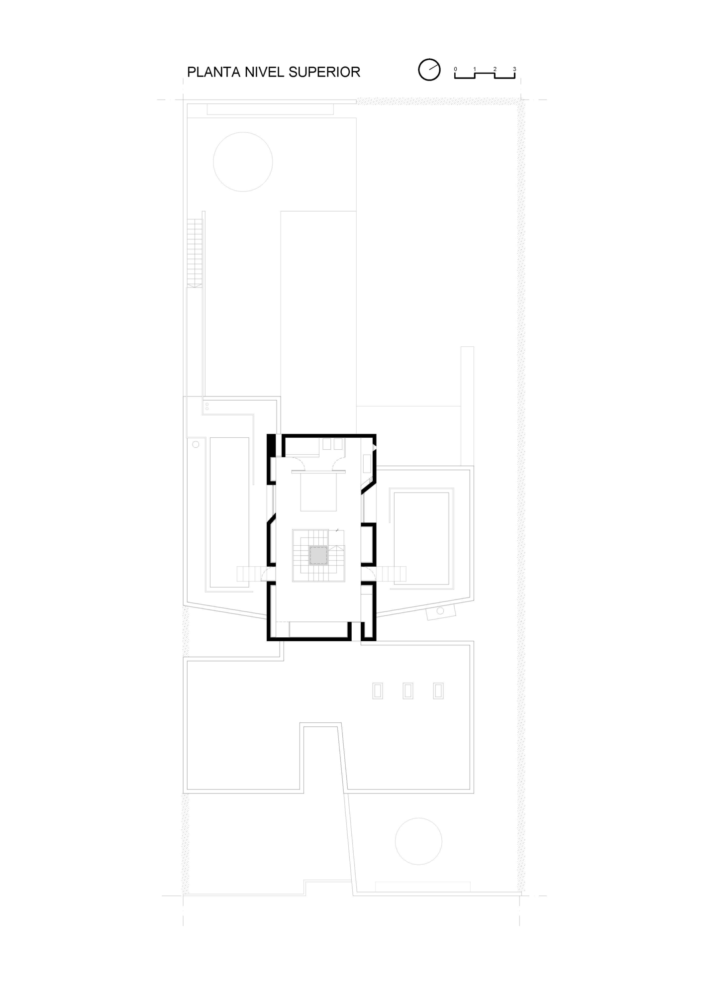
The Bunker House located in La Plata, Buenos Aires, Argentina was completed in 2011 by Estudio Botteri-Connell. It’s a family home built in a suburban neighborhood which integrates social life and protects intimacy.
Because of its design, we can say that this house consists of two different elements: the bunker which is solid, hermetic and almost impenetrable and the open, permeable Action space.
The Bunker is seen from outside as a stony but immemorial as carved rock and a place where geometry is surpassed.
The Action Plan is transparent with white walls and large tilling surfaces which are actually the limits of the plot of the land.
Photos by Gustavo Sosa Pinilla
























More Similar Articles Like This
10 Different Types of Blue Paint Colors
Plain Geometric Residence Designed by Lidija Dragisic
Astonishing El Tovar by the Sea
Wonderful Yachting Club Villas at Elounda Beach by Davide Macullo Architects
Vibrant Concrete Floor Paint Colors to Elevate Your Space
Lovelli Residence: Mediterranean-Style Dwelling in Bali
Dreamy Oceanfront Chateau In West Vancouver, Canada
Boracay Resort & Spa in the Fascinating Philippines