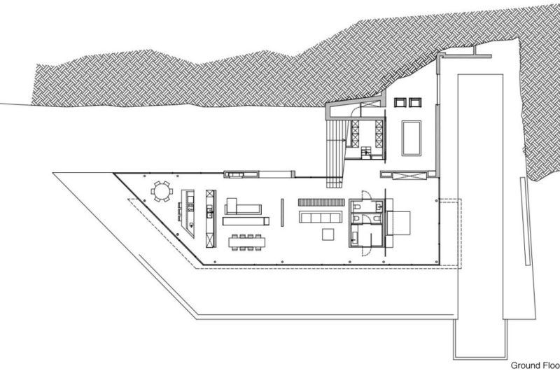
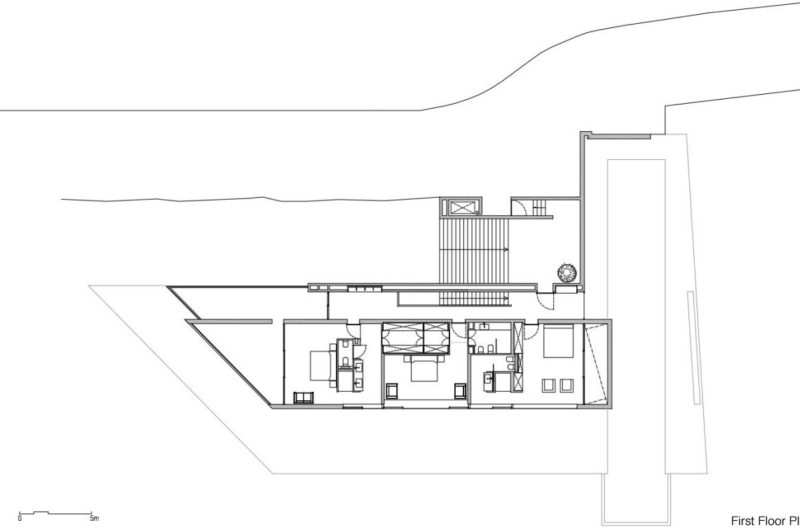
AIBS House is a 4,305 square foot residence by Atelier d’Architecture Bruno Erpicum & Partners (AABE), an architectural firm in Belgium. Located on a steep cliff in Ibiza, Spain, it was completed in 2002 with a perfect orientation so as to take full advantage of the sweeping sea views.
Floor-to-ceiling windows frame the landscape while also allowing natural light to flood the rooms. Another function of the extensive glazing is that of protection against winds. The building does not affect nature in any way, being perched at an altitude of 521 feet. Inviting terraces give a sense of continuity from inside to outside spaces, and the infinity-edge pool seems like a reflection of the vast sea that merges with the horizon.
Photos by Jean-Luc Laloux



















More Similar Articles Like This
Spectacular Luxury House in Sarasota, Florida by DSDG Inc. Architects
Different Types Of Foundations For Summer Houses and Garden Buildings
Exceptional Coronado Bay Front Estate in California
Benjamin Moore Exterior Paint: Vibrant Shades for a Striking Home
6 Garden and Lawn Tips to Get Ready for Spring
Beautiful Apartment in Stockholm for $1 Million
Unique Click Clack Hotel In Bogota, Colombia
The JKC1 House in Bukit Timah, Singapore