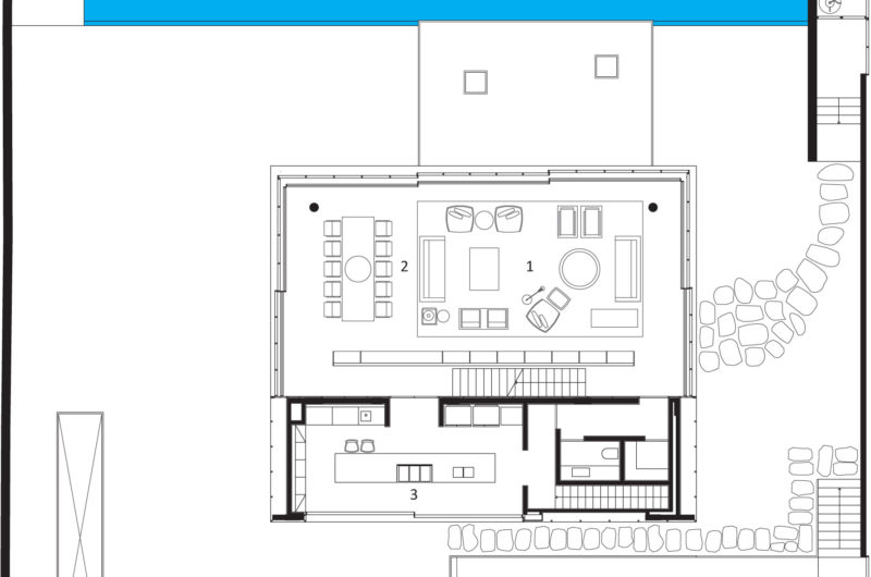
Studio MK27 completed Casa Cubo located in São Paulo, Brazil in 2012. It gets its name due to the fact that it consists of a large minimalistic cube that is very different form its interior.
The common are is an open space that is perfectly integrated with the garden. The top two floors are housed in a concrete box where there are open windows in the bedrooms which provide ventilation.
At night, Casa Cubo looks like a lantern because the interior space is seen on the façade, the dense volume of concrete being muted giving way to volumes of interior light.
Photos by FG+SG – Architectural Photography

























More Similar Articles Like This
6 Garden and Lawn Tips to Get Ready for Spring
Saguaro Palm Springs by Joie de Vivre
Lawn Care Tips, The Basics For Each Season
Behr’s Brilliant Blues: 70 Shades of Stunning Paint Colors
These Top Tips Will Help You to Turn Your Garden into the Ultimate Glamping Site!
The Sophisticated Casa Villa Flamingo in Spain
Outstanding Bodrum Houses in Yalikavak, Turkey
Benjamin Moore Exterior Paint: Vibrant Shades for a Striking Home