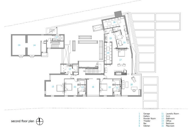
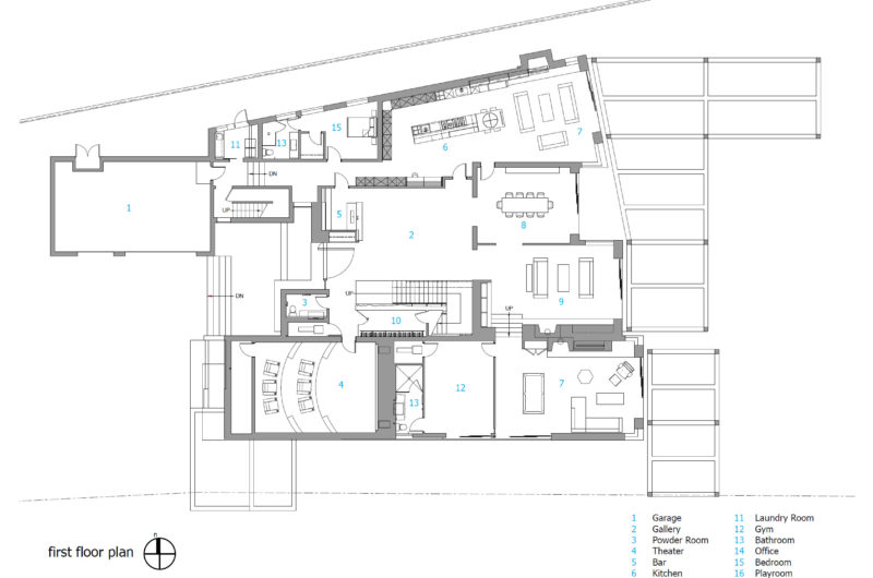
Assembledge+ in collaboration with Billy Rose Design completed the Stoneridge Residence in October 2010. This 11,781 square foot extraordinary home is located in the hills of Bel Air, Los Angeles, California.
Its renovation started in 1991 when it was covered all in brick and masonry according to the demands of the commercial builder that raised it from the ground.
Awarded with the title of Product Showcase House for the Avenues of Art & Design in collaboration with Luxe Magazine, this spectacular project nestles on a special site overlooking the San Francisco Valley and offers, as an element of sensation, an Olympic-sized infinity-edge pool and Barragan inspired water feature.
To the initial exterior brick finish were added large expanses of glass and dark steel sustaining items.
It’s a house abundant in space, light and luxury that provides all the comfort and intimacy one needs, at every moment of the day or night.
Photos by Michael Weschler Photography


































More Similar Articles Like This
Green Gables Home In Fairfield, Connecticut, United States
Lawn Care Tips, The Basics For Each SeasonÂ
The JKC1 House in Bukit Timah, Singapore
Extraordinary Constance Halaveli Maldives Resort
The Superb Maradiva Villas Resort & Spa in Mauritius
5 Ways to Turn Your Yard Into a Fancy Space
Beautiful Apartment in Stockholm for $1 Million
Stunning Sustainable Home in Costa Rica by SPG Architects