Completed in 2009 by Ohnmacht Flamm Architekten, an Australian design studio, the Kiko House is a beautiful contemporary residence with some really amazing features. It is located in Zirl, a small market town in the district of Innsbruck-Land, Australia.
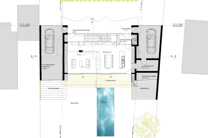
The owners bought the land a couple of years before the construction began, probably impressed by the open landscape and the lovely views it offered over the Inn river meadows and the spectacular Tyrol mountain peaks. The residence boasts a spacious living area that opens itself towards the green garden and the outside swimming pool. Two “boxes” are placed on each side of this area, holding garages and other auxiliary rooms.
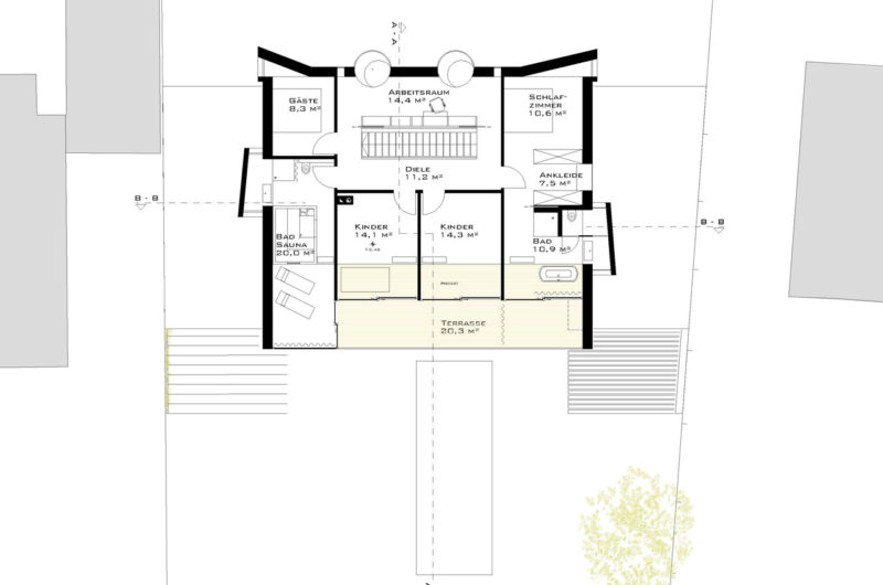
Above the living room there is a compact level housing the children’s playing area and the bedrooms, all set around a central study, which provides circular views towards the street: through two persplex hemispheres, each one with a transparent bubble chair for a little modern comfort.
Photos by: Henning Koepke













More Similar Articles Like This
Wonderful Yachting Club Villas at Elounda Beach by Davide Macullo Architects
Different Types Of Foundations For Summer Houses and Garden Buildings
Secluded Naladhu Island in Maldives
10 Different Types of Blue Paint Colors
Opulent Mandarin Oriental Hotel in Paris
Saguaro Palm Springs by Joie de Vivre
Exploring the New World of Luxury Hoteling
Green Gables Home In Fairfield, Connecticut, United States