The BR House is an extraordinary example of architectural ingenuity that was designed by a company called Studio MK27 and built at a unique location surrounded by a lush rainforest in Rio de Janeiro, Brazil. This incredible two-story abode was created with extreme care and attention to detail in order to meet and surpass all standards of comfort and elegance.
The house features sublime lighting arrangements complemented by high-end furnishings and quality finishes throughout, while multiple glass elements and open spaces help form a bond with the surrounding greenery by blurring the boundaries between the indoor and outdoor areas. This effect is most encountered in the main living areas on the first floor, since the bedrooms and other more intimate spaces were designed to offer utmost privacy.
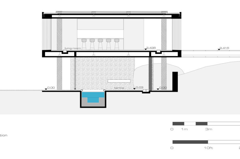
Another impressive design element involves the fact that the BR House can be approached at ground level but its entrance is actually located on stilts at the second level. As one of the most impressive residences in the area, this home must truly be a privilege and a pleasure to inhabit. See it all for yourself in the following pictures!
Photos by Nelson Kon

















More Similar Articles Like This
Wonderful Yachting Club Villas at Elounda Beach by Davide Macullo Architects
The Superb Villa Verai on Phuket Island, Thailand
Benjamin Moore Exterior Paint: Vibrant Shades for a Striking Home
Outstanding Bodrum Houses in Yalikavak, Turkey
Spectacular Luxury House in Sarasota, Florida by DSDG Inc. Architects
Extraordinary Constance Halaveli Maldives Resort
Green Gables Home In Fairfield, Connecticut, United States
Marvelous Anantara Dhigu Resort