Designed with utmost attention to detail by Paz Gersh Architects, this exceptional Mediterranean Villa was completed in 2015 and is located in Tel Aviv-Yafo, Israel. It features 4,873 square feet of living space and boasts an L-shaped layout as well as a large swimming pool and three types of Mediterranean gardens.
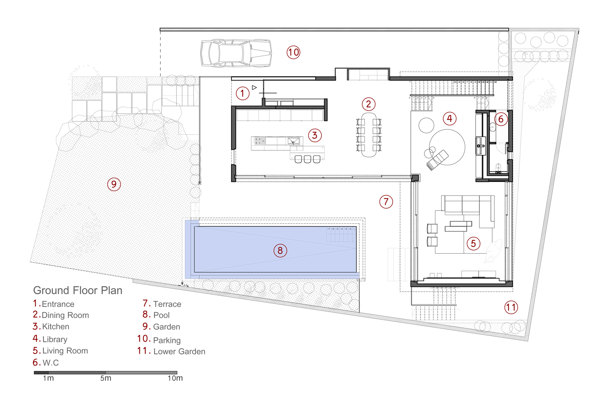
The residence was built using high quality materials and finishes, and so it flaunts aluminum window frames, a teak wood deck, staircase handrails made out of metal, elevations covered in teak louver panels and parquet wood floors. The ground floor features an open plan that includes the public living spaces such as the kitchen, the dining area, a library and a living room located close to the swimming pool.
The bedrooms are found on both the lower and upper floors of the residence, and so the ground floor acts as a transitional area between the lower bedrooms and the lavish master bedroom. Speaking of the master bedroom, we should tell you that it opens up to a beautiful roof garden. The other bedrooms on the lower level benefit from access to a private courtyard that can be used for rest and relaxation.
The architects in charge of this outstanding project were Zvi Gersh and Evyatar Cohen, and they designed this place for a family with children.
From the architect:
Concrete Construction, Aluminum window frame, Parquet wood floors, Teak wooden deck, Metal staircase handrails, Stucco coating and Teak Louver Panels on elevations.
In planning the villa, the main design concept was designing modern house L shape house around a pool and three various garden areas. The program was planned for a family with children with a large master suite. On ground floor an open plan provides public spaces such as: kitchen, dining, library, and living room around the pool area. By planning the bedrooms in the upper and lower levels of the house the ground floor becomes a transitional space between the master suite and the lower bedrooms.
The plan integrates 3 Mediterranean garden types, these gardens vary in type and location around the villa. On the upper level the master suite opens to a roof garden. On the roof steel containers hold the green area thus becoming an object in the garden. On ground level, cultivated fauna acts as a back drop towards the eucalyptus trees. At the lower level a private courtyard is situated next to the bedrooms.
In designing of the exterior elevations, a framing element is used to capture a segment of the landscape scenery.
The house design re-examines the boundaries of interior space on the ground level by the use of natural light and transparent glass elevations towards the south and west directions. These glass elevations on the ground floor are used as dynamic partitions, while the upper wooden louvers allow filtered sunlight into the master suite.
The design of the facades evolved through an analysis of precise proportions, these proportions can be seen through the entire house. The house was planned while searching for a contemporary architectural language, both using local references with the combination architectural Mediterranean elements.
Architect In Charge: Zvi Gersh, Evyatar Cohen
Interior Design: Michal Keinan Sinai. Interior Arch
Area: 450.0 sqm
Year: 2015
Photographs: Amit Geron















More Similar Articles Like This
How Seattle Lawn Care Service Deals With Overgrown Lawns
Astonishing El Tovar by the Sea
Spectacular Rooftop Apartment by Innocad
Extraordinary Constance Halaveli Maldives Resort
The JKC1 House in Bukit Timah, Singapore
Best paint colors for the living room
Stunning Sustainable Home in Costa Rica by SPG Architects
Marvelous Anantara Dhigu Resort