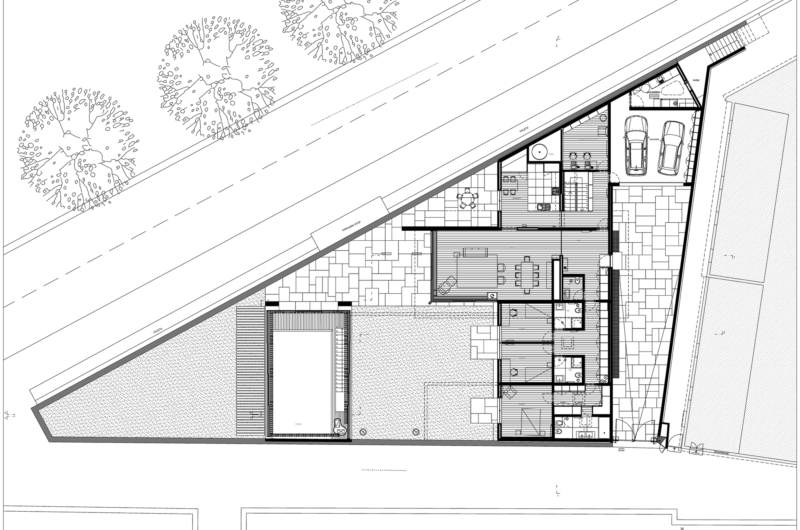
House In A Wall is an outstanding project that was designed and completed by architect Sérgio Koch in Porto, Portugal. The home was built on a lot of land that measures 8,751 square feet, but the construction itself occupied 5,489 square feet of space. As its name suggests, House In A Wall is surrounded by stone walls, and since it does not exceed them in height, it manages to ensure great privacy for its inhabitants.
The abode stretches on a single level and is accessed via an interior courtyard that also houses a garage. Inside, the main living areas are divided into 3 sections that comprise the kitchen area and the office, the main living room and the 3 bedrooms.
The office and kitchen are linked to a secondary inner courtyard, but the other living arrangements are facing a garden in the west, which happens to include an interior swimming pool. As far as entertainment is concerned, the owner can always spend some time in a special playroom found in the basement, which happens to be illuminated naturally with the help of a skylight. In order to ensure efficient illumination throughout the day, the architect decided to implement multiple glass elements in the façade, including floor to ceiling windows and sliding doors.
Photos by Fernando Guerra – FG+SG
















More Similar Articles Like This
Loving Luxury at Mardan Palace Resort, Turkey
Shadowed Depths: Vintage-inspired Paint Colors for Dark Basements
How Seattle Lawn Care Service Deals With Overgrown Lawns
Exceptional Coronado Bay Front Estate in California
Plain Geometric Residence Designed by Lidija Dragisic
Contemporary BO House In Envigado, Antioquia, Colombia
The Superb Villa Verai on Phuket Island, Thailand
Vibrant Concrete Floor Paint Colors to Elevate Your Space