Completed in 2012 in Gapyeong-gun, Gyeonggi-do, South Korea, Guest House Rivendell was penned down by IDMM Architects, and it measures 7,760 square feet. It was built on a 35,520 square foot lot and boasts a contemporary, carefully designed exterior that allows it to appear somewhat larger than it actually is. This was necessary in order to ensure that the house would not look small and remote on such a spacious plot.
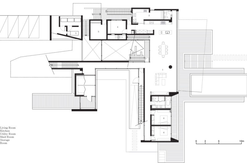
The residence flaunts large windows and glass walls as well as impressive lighting systems that contribute to a welcoming atmosphere. The kitchen, utility room, storage, the housekeeper’s room and the kitchen can be found at the basement level, while the first level incorporates the fabulous master bedroom as well as another living room, a candle room, a dressing area, a library and guest accommodations.
The second level impresses with a spacious rooftop terrace that can be used to take in the wonderful natural panoramas of the nearby Han River.
From the IDMM Architects:
Among its many types, residential architecture is extremely limited when it comes to experimentation. Who would want to live like a guinea pig in highly private space in which his or her life unfolds? In order to weigh up the singularity of the architecture of a residential building, the search for relationships between spaces could be a better approach than searching for ‘newness’.
Relationships between the building’s layout and the land upon which it stands, and the way in which it fits in among the buildings around it are to be interrogated. The Guesthouse Rivendell sits on a plot that measures 3300m2 (35,520ft2), a size rather large for a house. The architect has been careful, therefore, to position the structures so as to avoid making the house look too small and the leaving the rest of the site looking like a desert.
Perhaps the way its body spreads out like limbs in every direction, too, is a way of dividing up the large plot and making the outer surface of the building as large as possible. Sequence is an important concept when it comes to this building. Unlike that of conventional house, this building’s upper and lower parts are divided and its long lines of flow extend like unraveling spools of thread.
The view placed over this building’s sequence, then, is interrupted and divided. It is difficult to rate it as a new principle in architecture or an experimental home. When you go inside the house and look outwards, however, you will have a sense of how the one thing in the world that we never tire of seeing is the exotic effect of nature and the architecture that mediates it: anew perception of nature as its familiarity breaks up like a glass bead; witnessing nature as it changes at every moment and in every place.















More Similar Articles Like This
Vibrant Wood Tones: Explore a Spectrum of Spray Paint Colors!
Lawn Care Tips, The Basics For Each Season
Pure Perfection: Discover the Top White Paint Colors for a Flawless Décor
Unique Click Clack Hotel In Bogota, Colombia
Exquisite Crossacres Mansion In Surrey, England
The Sophisticated Casa Villa Flamingo in Spain
10 Different Types of Blue Paint Colors
A Superb Italianate Mansion in California, USA