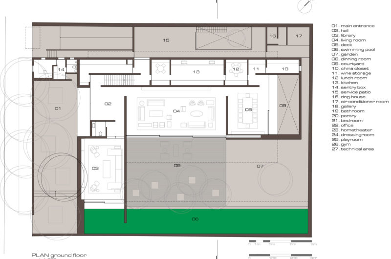
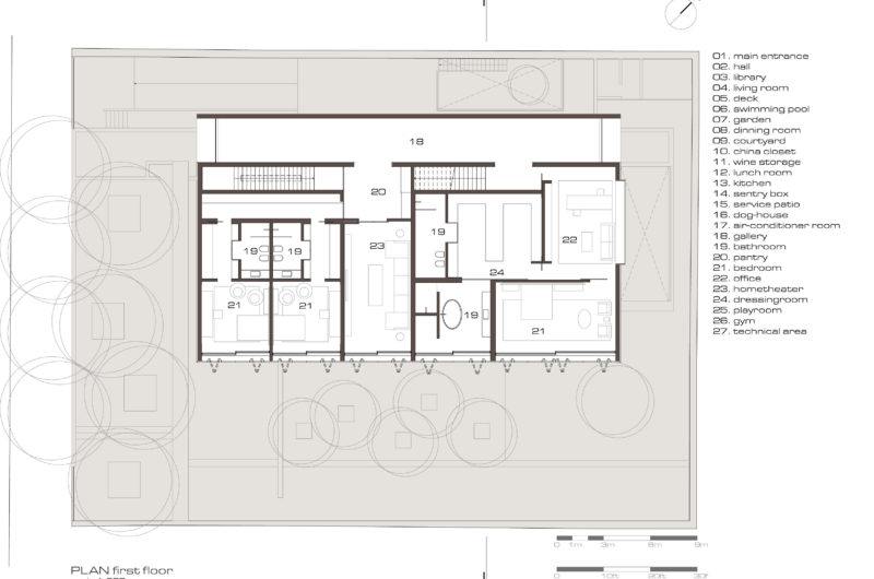
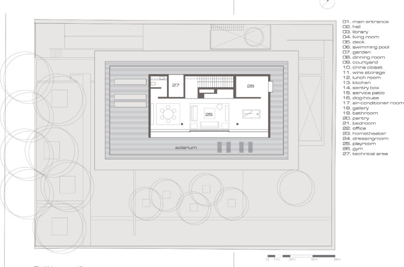
Due to the numerous works of art which beautifies the interior, the Casa Panama is a gorgeous contemporary home that makes each day a joy. Located in Sao Paulo, the house was completed in 2008 by Studio Mk 27, offering positive energy and the pleasure of returning home. The estate is divided into three floors and a sub-solo which feature a library, a vertical circulation, utility rooms and a living room. A spectacular garden can be admired from the office window and from the master suite’s large windows as well. On the third floor we find a game room and a gym connected to a wooden deck. The materials used for the construction (wood, reinforced concrete, plastic) weren’t too picky but they were indeed very resistant in time. For a spectacular life choose to live in a spectacular house!
Photos by Nelson Kon


























More Similar Articles Like This
Gorgeous And Spacious Home In Sunset Strip
Amazing Four Seasons Resort Bora Bora
70 Shades of Green: Benjamin Moore’s Vibrant Paint Colors
Vibrant Wood Tones: Explore a Spectrum of Spray Paint Colors!
Pure Perfection: Discover the Top White Paint Colors for a Flawless Décor
Secluded Naladhu Island in Maldives
Exploring the New World of Luxury Hoteling
Boracay Resort & Spa in the Fascinating Philippines