Elegant yet neatly organized, the design of the Cabo House was envisioned by Vanguarda Architects and was materialized within the city of Cabos del Lago in Argentina. Featuring spectacular looks as well as comfortable living conditions, this stunning home is definitely one of the most breathtaking of its kind in Cabos del Lago, but its highlights extend way beyond its alluring appearance.
The main layout of the residence is based on an S-shaped folded wall, which guarantees separate openings at the rear and front of the house in order to ensure the efficient separation of the private and social living areas. As such, the rear façade as well as the front façade feature parking spaces and pedestrian access, while the rear façade includes the kitchen, a dining room, a sitting room and a spacious gallery.
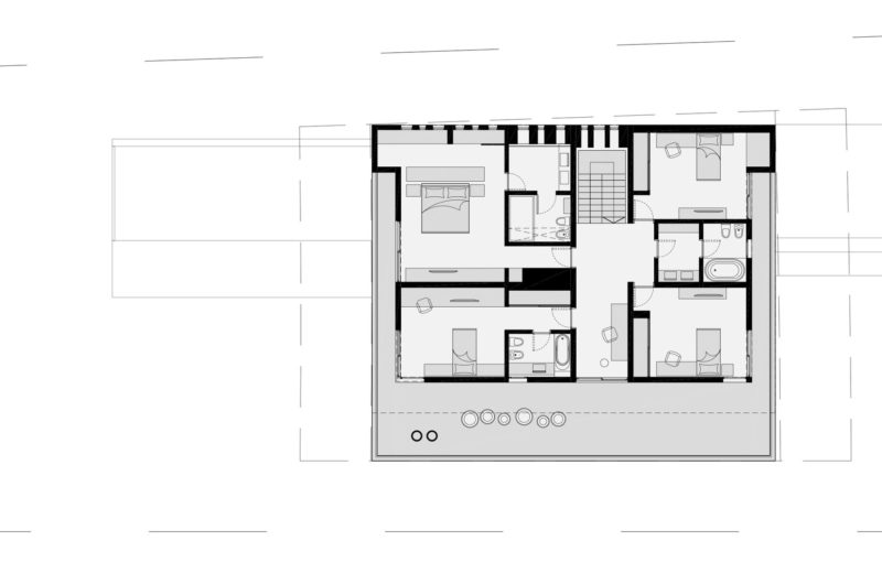
The service area as well as a toilet and a study can all be found on the ground floor, while the upper floor is reserved for the master suite, 3 bedrooms and a music room.
From the Vanguarda Architects:
The geometry is solved through a simple S-shaped folded wall that allows the house to be opened to the front and rear façade, closing on its sides above and below alternatively to create the different areas of the layout. The right corner of the front, with a seven-meter projecting roof, includes the pedestrian access and space for parking the cars. To the rear façade, the sitting room, dining room and kitchen are integrated, followed by a large gallery that connects them to enjoy the views onto the garden, the pool and the lagoon that is behind the lot.
The ground floor is completed with a study, a toilet and the service area: laundry, pantry, storage room, bedroom and bathroom.
The upper floor, including the master suite, the music room and three bedrooms with the respective service rooms, opens the views onto the environment and is complemented by a large terrace on the side.

















More Similar Articles Like This
How Seattle Lawn Care Service Deals With Overgrown Lawns
Wonderful Yachting Club Villas at Elounda Beach by Davide Macullo Architects
Stunning Sustainable Home in Costa Rica by SPG Architects
Pure Perfection: Discover the Top White Paint Colors for a Flawless Décor
Behr’s Brilliant Blues: 70 Shades of Stunning Paint Colors
Dreamy Oceanfront Chateau In West Vancouver, Canada
Loving Luxury at Mardan Palace Resort, Turkey
The JKC1 House in Bukit Timah, Singapore