Completed in 2014 on a naturally formed plateau in Pera Melana, Greece, this fabulous villa was designed by Valia Foufa, Panagiotis Papassotiriou for a family that wanted to be able to enjoy the gorgeous Arcadian Landscape from their own country house. The residence offers exceptional views of the sea due to its elevated positioning, and it offers irreproachable living conditions despite its somewhat remote location.
Its structure is based on three volumes that were arranged along the project’s contour lines. Inside, one of the most noteworthy spaces is a central volume that hosts the primary daily activities. This space boasts local Arcadian stone cladding and sits on a concrete frame and brick infill. It features a pitched gabled roof and incorporates a fireplace that contributes to a cozy and welcoming ambiance. Fading the limits between the indoors and outdoors are the floor-to-ceiling openings and sliding doors, which also welcome natural light throughout the residence. The main volume is flanked by two white blocks on two sides.
From the architect:
The project was awarded to us by a family leaving in Athens keen on a new country house in the Arcadian Landscape. Design started mid-2012 and work on site was completed at the end of 2014.
The program
It all started as a simple snapshot; At a very steep site with clear view towards the sea a holiday retreat protects its inhabitants from the sun heat and the strong winds while soothing the senses under the moonlight.
We have placed the building at the only available naturally formed plateau of the site in order to avoid unnecessary groundworks that could spoil the relief.
Simple elements to deal with a difficult and very unstable and steep terrain. The endless of the sea view and the enormity of the open horizon is overwhelming and therefore no great attempt is needed to frame the views.
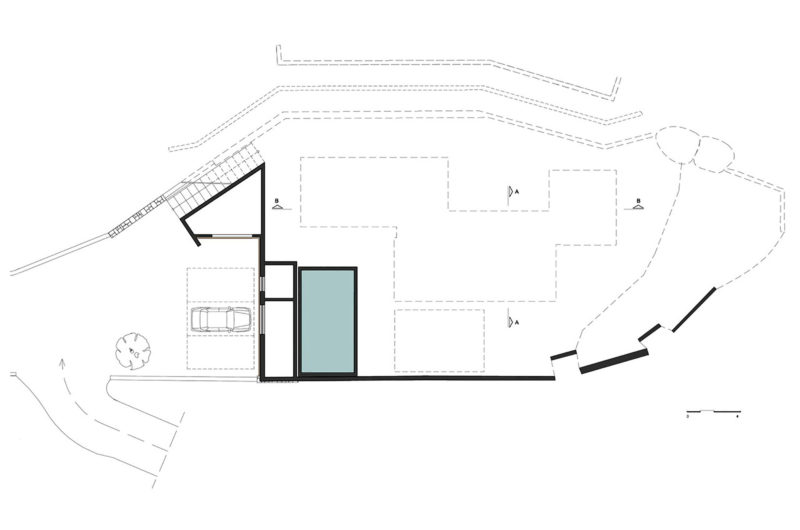
The structure is defined by 3 volumes that are placed along the contour lines. The end product is a result of the division of a rectangular volume into 3 parts while staggering the middle part towards the east.This break is enhanced by the use of various materials and alteration of the design.
The main features of the central volume (where the day activities are hosted) are the cladding with local Arcadian stone – dry stone construction both internally and externally on concrete frame and brick infill -, pitched gabled roof with roofslates and the fireplace on the narrow end framing the view. The design has references to the local architecture (where the Tsakonian “Makrinaria” are met) incorporating changes to the form and size of the openings in order to achieve better results on the bioclimatic output and view.
Floor to ceiling openings enhance the dual aspect feature without affecting the monolithic quality while the views cross on all sides. The staggering of the western wall from the outline of this volume creates a long and narrow circulation area under a flat parapet roof that connects all three volumes.
Two white blocks are set back on either side of the main volume (where the bedrooms and wc’s are hosted) acting as reference to the minimalism and sincerity of our attempted architectural language away from heavy decorative features and overstatements.
At the intersection of the three volumes two fair faced concrete beams act as “connectors” subtly underlining the junction of the 3 blocks.
Finally, white render reflects the sun, the stone cladding offers its thermal mass connecting the building with the surroundings and together protect the inhabitants from the weather conditions. A configuration revealing the endless view to the horizon and was born out of consideration for the steep relief and the local traditional materials.
Architects: Valia Foufa, Panagiotis Papassotiriou
Location: Pera Melana 223 00, Greece
Project Year: 2014
Photographs: Erieta Attali, Pygmalion Karatzas
Civil Eng: Kratimenos Antonis
Mechanical Eng: Kabilis Nikos
Topographical Survey: Bokolas Dimitrios, Koulos Evangelos
Civil Eng Consultant: Taraviras George












More Similar Articles Like This
Vibrant Concrete Floor Paint Colors to Elevate Your Space
Extraordinary Constance Halaveli Maldives Resort
Dreamy Oceanfront Chateau In West Vancouver, Canada
Plain Geometric Residence Designed by Lidija Dragisic
Pure Perfection: Discover the Top White Paint Colors for a Flawless Décor
10 Different Types of Blue Paint Colors
Unique Click Clack Hotel In Bogota, Colombia
Benjamin Moore Exterior Paint: Vibrant Shades for a Striking Home