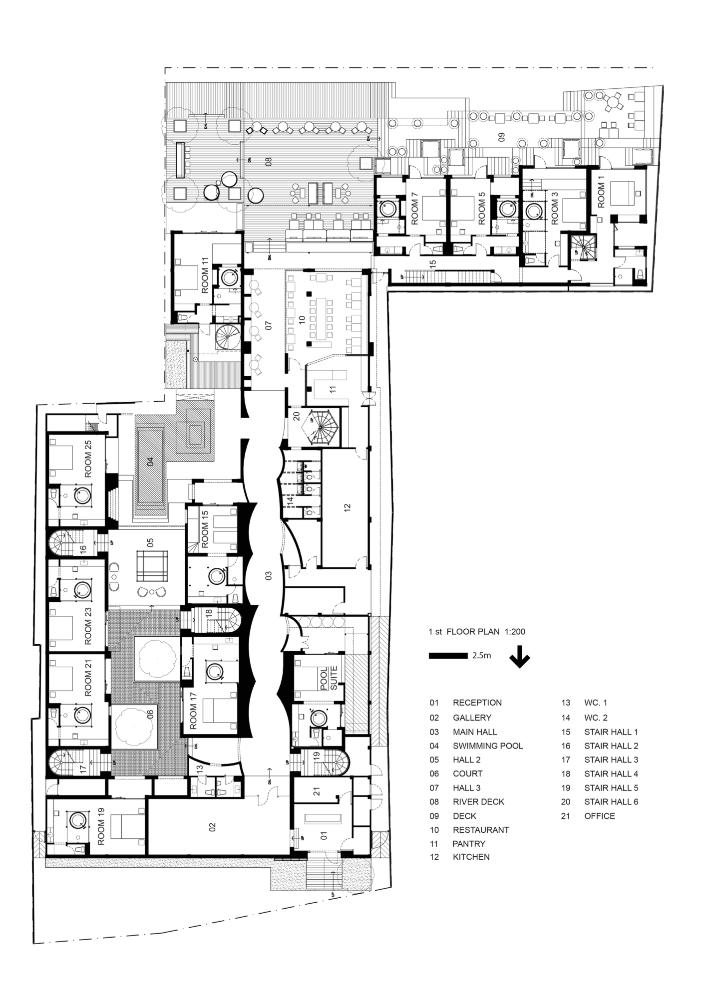
Designed by Onion, Sala Ayutthaya is a luxurious and modern boutique hotel that is located in Phra Nakhon Si Ayutthaya, Thailand. This high-end establishment has 26 rooms and impresses with an elongated brick facade that has a single iron door as an entryway. Once inside, guests are greeted by a reception area with wooden ceilings and by a double volume art gallery.
The hotel flaunts exquisite views of the Putthai Sawan Temple and Chao Phraya River, but these views can only be admired by guests that are moving past the Sala Restaurant as they head to a riverfront deck. The interior design, the finishes and decorations were implemented with utmost attention to detail by Onion’s experts. Consequently, the hotel boasts unique bell-shaped granite lampsĀ in the restaurant as well as a beautiful image of a leaping tiger above the headrests in the bedrooms. Moreover, the bathroom counters and the beds feature sections of a special Thai adornment named “luk-mahuad”.
The great thing about Sala Ayutthaya is that each and every one of its rooms is unique. Three rooms benefit from access to a white marble step swimming pool, while a special room features its own terrace and a concealed daybed for children.
From the architect:
Sala Ayutthaya is the twenty-six-room boutique hotel, right across a most picturesque site of the old capital of Thailand along the Chao Phraya River. Phutthai Sawan Temple was built in 1353 AD by the first monarch of Ayutthaya Kingdom. It becomes the view of the restaurant and the riverfront suites at Sala. The main entry of Sala is next to a Sala Tree on U-thong Road. It is a single iron door on a long brick facade, leading us to the low wooden ceiling reception and the double volume art gallery. Within this space, the dominant feature is an antique wooden door that Onion designs the framing for. It is placed between the transparent mirrors, opening to the exterior courtyard, narrowed by the paralleled brick walls of multi-curved geometries. They frame the image of the sky. What is unique about this main circulation is the constantly changing shadows. The curved shadows from the two sides normally meet on the floor at about eleven o’ clock in the morning. They transform the atmosphere of the space at different times of the day.
The panoramic view of Chao Phraya River and Putthai Sawan Temple cannot be seen from the brick walls courtyard. It can only be experienced when we walk pass Sala Restaurant towards the riverfront deck. At this location, we see another facade of Sala, white walls of gable houses, the arrangement of step decks and terraces along the waterfront. Sala layout is a compound of twelve private residences, proportionately packed within the limited area of L-shape land, leaving the focal points of the project to be the outdoor spaces. They exhibit the local craftsmanship of brickworks, juxtaposed with the simplicity and neatness of the white walls and a solution to the problem of annual flooding, inspired by Chand Baori Step Well in Rajasthan, India.
At Sala Ayutthaya, the step decks are designed to be flooded. They lead us down from the one-storey high platform to the same level as the river. Four red-flower trees called jik are planted next to the main deck in order to signify the location of the outdoor bar. Along the narrowed river bank, Onion plants a row of tropical tree named krading-nangfa (its literal translation is the āangel’s bell’ tree). Their bell-shape flowers will eventually blossom. Their branches will suspend themselves down towards the river and form a long tunnel of fragrant tree. Sala Ayutthaya will be more complete with age.
The pattern of steps can also be explained as an architectural element of Ayutthaya architecture. The architects have borrowed a reduced size of a corner of the Phutthai Sawan Stupa, scaled and redesigned it to frame various objects at Sala. This includes the interior and the exterior walls, the vertical and the horizontal planes, the furniture and the pillow cases. Such a repetition marks the architects’ concern about what contemporary Thai is meant, in both functional and decorative senses.
Onion places much attentions on the construction details and interior designs. The bell-shape granite lamps are the main features at Sala Restaurant. They are custom-made by a local factory. The structural pattern of the hangers is based on the grid system, but the design looks dynamic because of the precise positions of the weights that change the pattern of electric cables, from a straight to a zig-zag pattern. The image of a tiger leaping forwards, meaning strength in Thai’s belief, is engraved upon the head of the wooden bed. The section of a Thai ornament called luk-mahuad is redesigned as parts of bathroom counters and beds. Sala Ayutthaya projects a character of the architects who are interested in form and customisation.
The privacy of Sala guests is secured through the circulation designs. The architects decide to use a single load corridor much less than a series of staircase that directly lead the clients to their own bedrooms. Each bedroom is always different from the other. There are at least three rooms that have the direct access to the step swimming pool made of white marbles. The most cozy one is a smaller bedroom that has its own private terrace and a hidden daybed for children. A more spacious room does not have the river view, but its longitudinal wall is facing the longitudinal side of the swimming pool. On the upper floor, the room above the gallery has the bird-eye-view of the brick walls courtyard. The bridge room has the bird-eye-view of the swimming pool and the garden courtyard. These special characters of each room make it exciting for the guests to revisit Sala.
Architects In Charge: Siriyot Chaiamnuay & Arisara Chaktranon
Interior Designer: Onion, Siriyot Chaiamnuay & Arisara Chaktranon
Area: 3500.0 sqm
Year: 2014
Photographs: Wison Tungthunya
















More Similar Articles Like This
Spectacular Rooftop Apartment by Innocad
Exploring the New World of Luxury Hoteling
Astonishing El Tovar by the Sea
Exceptional Coronado Bay Front Estate in California
Behrās Brilliant Blues: 70 Shades of Stunning Paint Colors
Stunning Banyan Tree Ungasan Bali in Indonesia
Santa Barbara Style Home in Paradise Valley, Phoenix
Opulent Mandarin Oriental Hotel in Paris