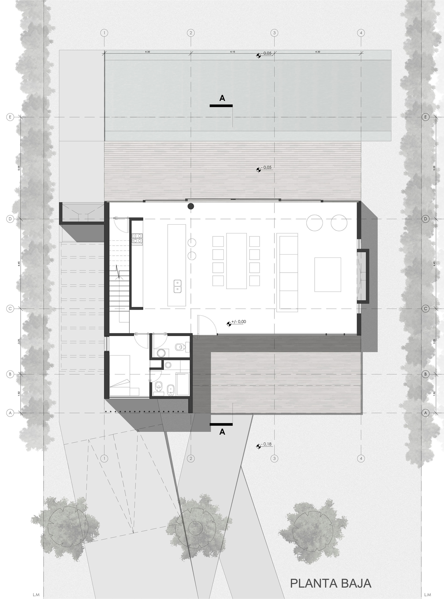
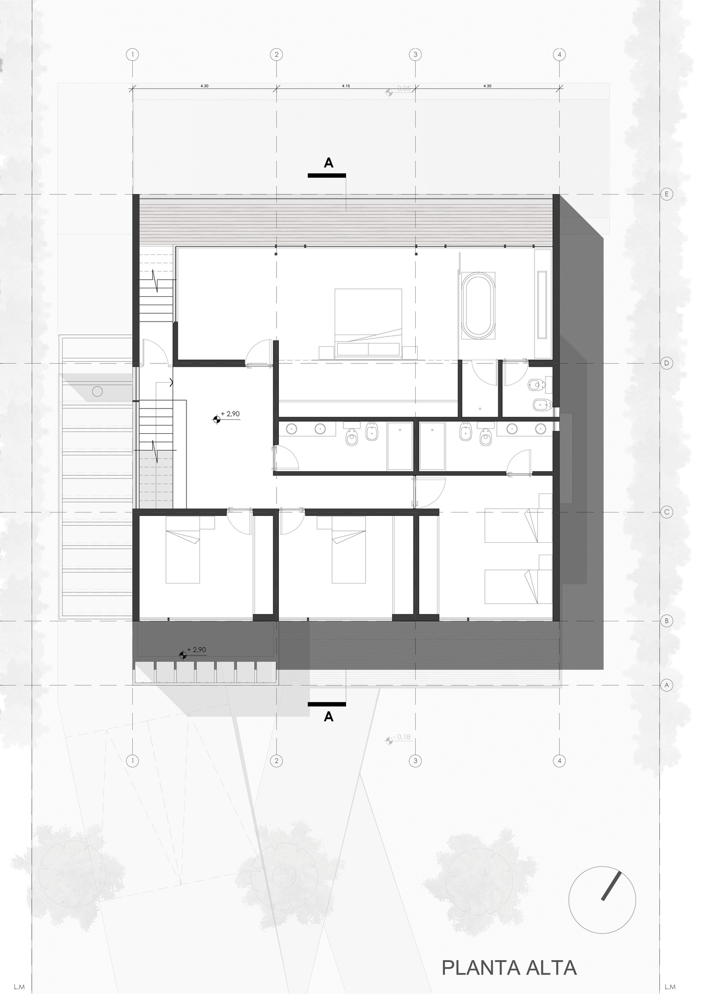
Fritz + Fritz Arquitectos had this 300 sq m space to create a family home in Avenida Nordelta, Buenos Aires. The concept of the house revolves around the orientation of the house and the environmental elements.
To achieve independence between the different parts of the residence a two-leveled structure was designed. On the outside it appears like two rectangular areas were positioned one on top of the other, creating a span of 12 m. The ground floor had to be completely integrated with the outside so the common area opens through a covered terrace to the pool and the garden. The common area at the base of the structure includes the kitchen, living and dining in one single place. On the upper floor there are the bedrooms and private spaces.
The materials for this house were wood and concrete. The textures underline the concept of connecting the environment to the interior of the house.

















More Similar Articles Like This
Pure Perfection: Discover the Top White Paint Colors for a Flawless Décor
Extraordinary Constance Halaveli Maldives Resort
Amazing Four Seasons Resort Bora Bora
Unique Click Clack Hotel In Bogota, Colombia
Tips for Choosing the Right Blue Paint Color for Your Dining Room
70 Shades of Green: Benjamin Moore’s Vibrant Paint Colors
Shadowed Depths: Vintage-inspired Paint Colors for Dark Basements
10 Different Types of Blue Paint Colors