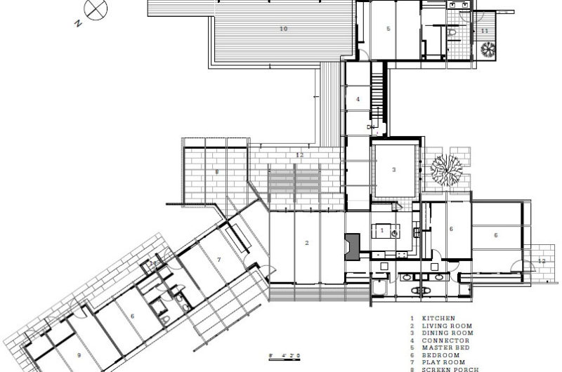
Cape Cod Modern House Addition is a project completed in 2008 by Hammer Architects. It is located in Wellfleet, Massachusetts, USA and practically consists in an extension added to an existing structure which includes a new dining room, a terrace, a master suite and also an indoor lap pool.
This new plan allowed the family activities to be centered in the house while relocating the kitchen from the maid’s wing.
The new rehabilitation is simply perfect because, now all the family members can enjoy the spaces they’ve been craving for.
Photos by Peter Vanderwarker













More Similar Articles Like This
Spectacular Rooftop Apartment by Innocad
Heavenly Lily Beach Resort & Spa In Huvahendhoo, Maldives
Plain Geometric Residence Designed by Lidija Dragisic
Pure Perfection: Discover the Top White Paint Colors for a Flawless Décor
The Sophisticated Casa Villa Flamingo in Spain
10 Different Types of Blue Paint Colors
Saguaro Palm Springs by Joie de Vivre
6 Garden and Lawn Tips to Get Ready for Spring