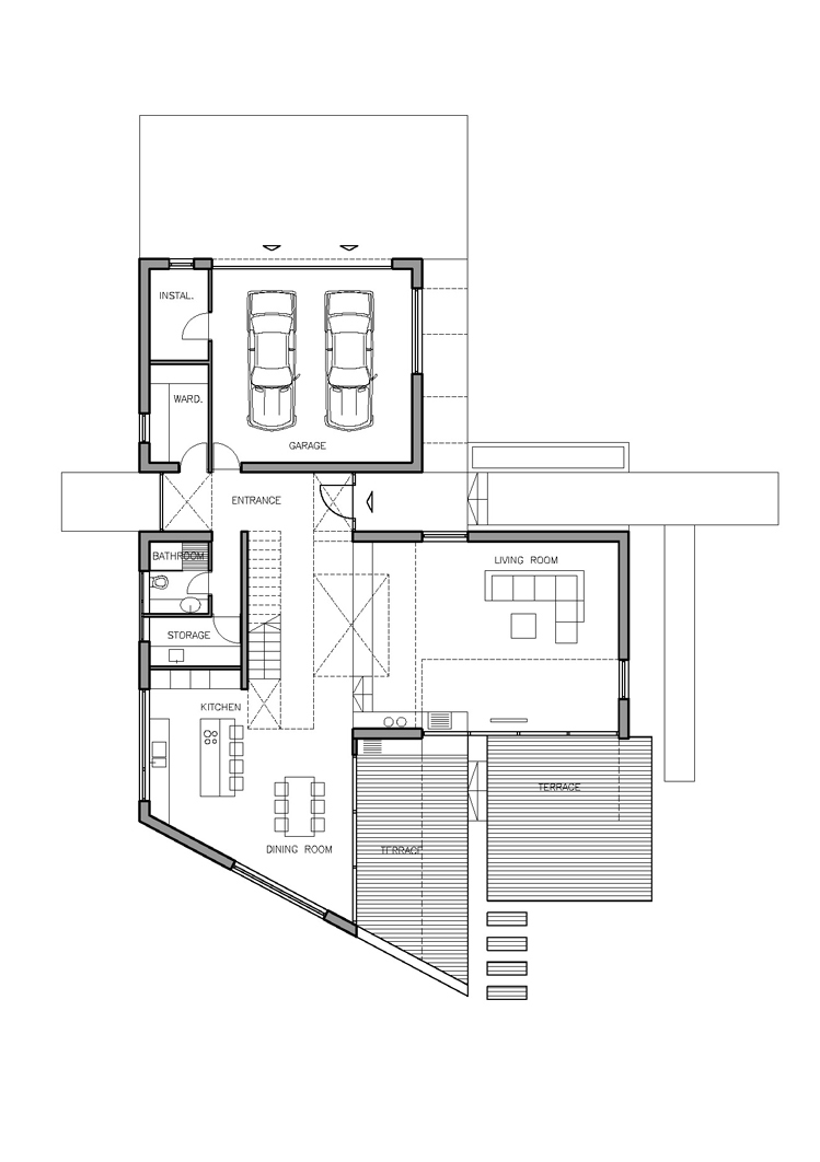
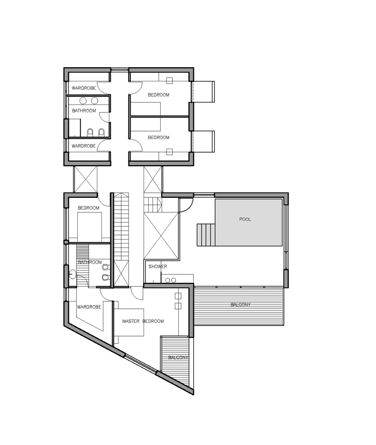
The J20 House located in Zagreb, Croatia was designed by DAR612 with the aim of creating a warm and welcoming place for a family. Placed on a gentle gradient, this residence consists of the superposition of a longitudinal wing with white finish and a perpendicular one coated in a dark wood layer. Its T-shaped form offers views from all sides and the two story-high entries separate the house into two segments connected by a wooden bridge.
The pool is located above the living room and can be glimpsed for all around the house. The core of the residence is comprised of the stairs and the bridge that are designed as a steel structure with wooden paneling that gently unifies the interior.















More Similar Articles Like This
Beach House CN – A Superb Contemporary Home in Peru
Shadowed Depths: Vintage-inspired Paint Colors for Dark Basements
Lawn Care Tips, The Basics For Each SeasonÂ
Exceptional Coronado Bay Front Estate in California
Spectacular Luxury House in Sarasota, Florida by DSDG Inc. Architects
Marvelous Anantara Dhigu Resort
Different Types Of Foundations For Summer Houses and Garden Buildings
Unique Click Clack Hotel In Bogota, Colombia