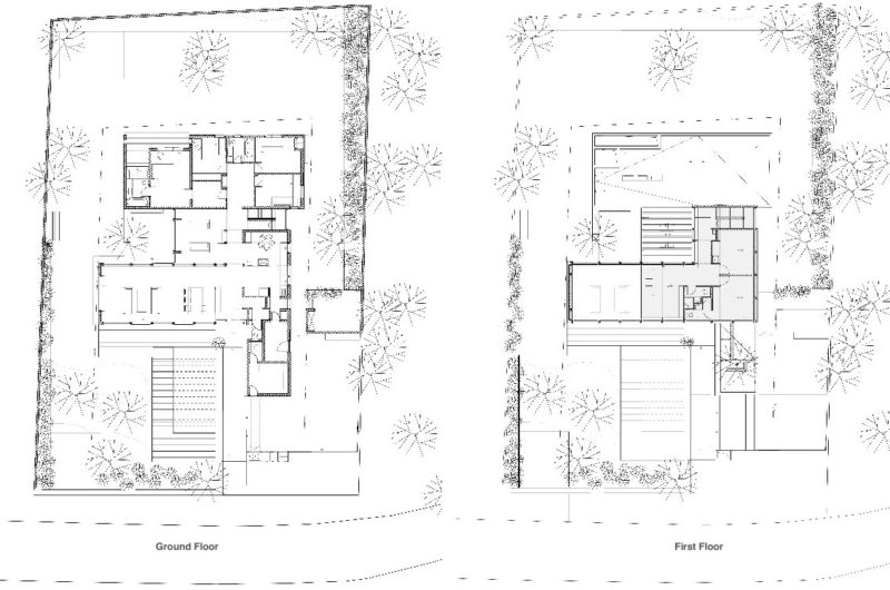
Built in 2008 in a pine wooded area by Alroy Hazak Architects, the F House is a contemporary beauty in Savyon, Israel. It was carefully designed to blend into the landscape by mimicking the “rhythms and textures” of the surroundings. With 2,799 square feet of lavish spaces, this is a home for lovers of the high life.
Contemporary F House by Alroy Hazak Architects
Luke Martin
I am Luke Martin, a writer who loves homes. My words are about creating comfy and nice living spaces. Let's explore ideas for decorating and making homes cozy together. Join me on this journey to make your house a special place to be.



























More Similar Articles Like This
Loving Luxury at Mardan Palace Resort, Turkey
70 Shades of Green: Benjamin Moore’s Vibrant Paint Colors
Opulent Mandarin Oriental Hotel in Paris
Behr’s Brilliant Blues: 70 Shades of Stunning Paint Colors
Lawn Care Tips, The Basics For Each Season
These Top Tips Will Help You to Turn Your Garden into the Ultimate Glamping Site!
The Superb Villa Verai on Phuket Island, Thailand
Shadowed Depths: Vintage-inspired Paint Colors for Dark Basements