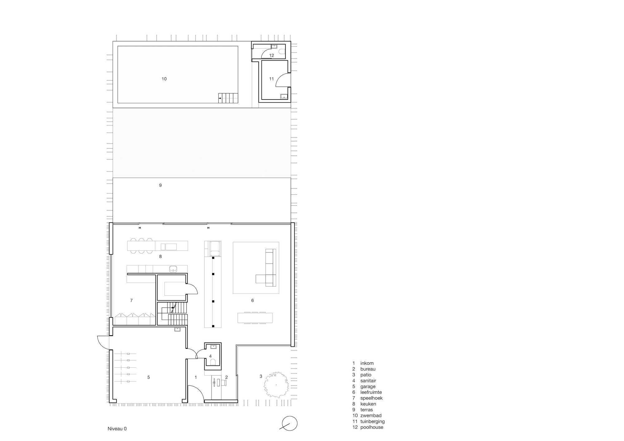
The Corten House is a house like no other, and its uniqueness is owed to an original design and a rather odd yet impressive choice of materials. Sketched out by DMOA Architecten and built in 2013 in Kontich, Belgium, this 5,812-square foot home is a spacious and comfortable abode that can support a relaxed and carefree lifestyle.
The main material used in its construction is Corten steel lamellae, which was also used for the property’s landscaping. The single lamellae around the garden, the garage gate, the floor encircling a ginkgo tree and the home’s cladding were all put together using this special material, which is famous for its rust-like appearance.
Even though the Corten House appears rusted, it does not seem fragile or weathered down in any way. It actually blends with its surroundings and gives off the impression of a sturdy and reliable abode. Aside from the home itself, the property also includes an outdoor patio that features lounging areas, a small lawn and an adjacent swimming pool.
From the architect:
In this house in the suburbs of Antwerp, weathering steel lamellae are in command. Inside as well as outside they define the spaces, they mark out the boundaries where needed and open again when suited. They glow in the rusty evening sun and give a twinkling show of shadows. They embrace and protect the environment of the residents of this extraordinary house. You can feel them everywhere.
The concept of this house is based on the use of the Corten steel lamellae. It’s not only used to design the building, but it also shapes the landscape and defines the interior.
A far-reaching detailing was needed to enable the use of the lamellae as cladding (welded on a perforated plate), as the gate of the garage, as the single lamellae around the garden (fixed on a invisible special structure), as the rusty floor around the ginkgo tree (chips from the waste of the perforated plates).
Collaborators: Benjamin Denef, Matthias Mattelaer, Stefanie Dieleman, Charlotte Gryspeerdt, Lien Gesquiere, Koen Paridaens engineering
Area: 540.0 sqm
Year: 2013
Photographs: Luc Roymans













More Similar Articles Like This
Spectacular Luxury House in Sarasota, Florida by DSDG Inc. Architects
Extraordinary Constance Halaveli Maldives Resort
Heavenly Lily Beach Resort & Spa In Huvahendhoo, Maldives
The Superb Maradiva Villas Resort & Spa in Mauritius
Marvelous Anantara Dhigu Resort
Santa Barbara Style Home in Paradise Valley, Phoenix
Saguaro Palm Springs by Joie de Vivre
Secluded Naladhu Island in Maldives