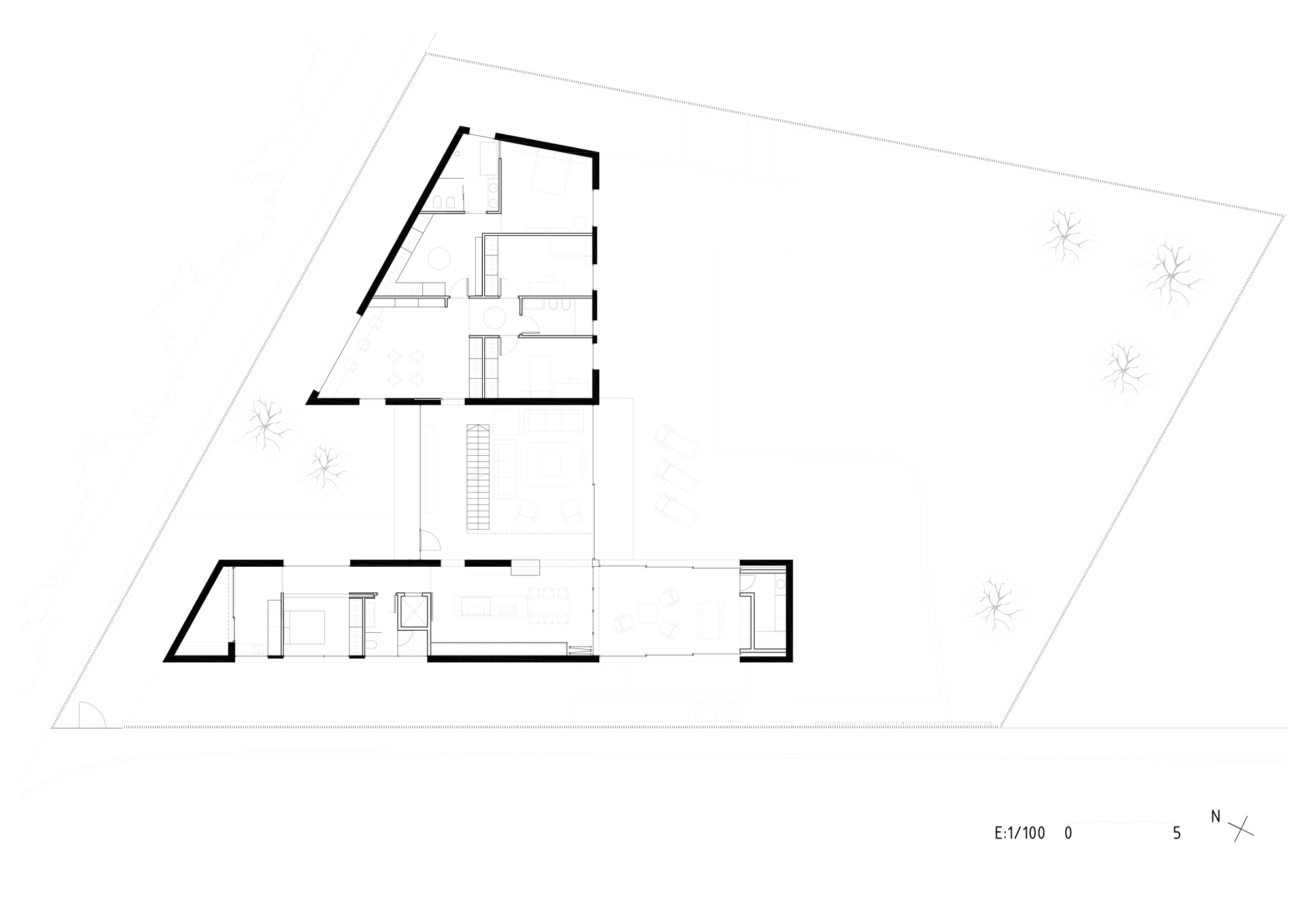
Built in 2014 within a neighborhood named Cassà de la Selva in Girona, Spain, this modern masterpiece offers 6,243 square feet of living space and was designed by architects Ricard Galiana and Yago Oliva. The abode features two levels and was constructed on a scenic site that includes a small slope. The lower level comprises the parking areas and the garden, while the upper floor incorporates a swimming pool as well as the main living spaces.
The upper floor boasts a pair of concrete blocks, which contain the night and day areas. These two blocks are linked by a mezzanine and a double-height living room. Outdoors, we find a porch that faces the swimming pool to the south as well as a backyard that is orientated towards the north and ensures pedestrian access. The two floors are connected by an interior staircase that flaunts “floating” wooden steps and metal hand railings.
From the architect:
“The House in Cassà project is a single-family house built in a new neighbourhood in Cassà de la Selva (Girona).
The house is situated in a plot with a small slope facing the south which is divided in two different levels. The upper level hosts the main rooms and swimming pool whereas the lower level accommodates the garden and the parking.
The main rooms are distributed along a single floor divided in two concrete blocks –“night and day areas”– , with a double-height living room and a mezzanine creating a transparent space connecting both blocks.
The two blocks offer the needed degree of privacy to each space while taking into consideration the private views, the street, the forest and the solar orientation.
The northern backyard provides a pedestrian access in contact with the forest. The south porch-terrace faces the swimming pool.”
Location: 17244 Cassà de la Selva, Girona, Spain
Area: 580.0 sqm
Year: 2014
Photographs: Nani Pujol
Project Collaborator : Roman Zitnansky
Structure: Gerard Claveria
Facilities: Jaume Pastor
Rigger: M. Pagans
Interior: Georgina Figueras
Budget: 1.000.000 €










More Similar Articles Like This
Outstanding Bodrum Houses in Yalikavak, Turkey
Amazing Four Seasons Resort Bora Bora
Superb Luxury Penthouse in Portomaso, Malta
Vibrant Concrete Floor Paint Colors to Elevate Your Space
Seamlessly Apartment by the Beach by ZZ Architects
Green Gables Home In Fairfield, Connecticut, United States
Extraordinary Constance Halaveli Maldives Resort
6 Garden and Lawn Tips to Get Ready for Spring